3 January 1998
Source: Hardcopy of Overly Manufacturing Company catalog (Tempest products not online)

See comprehensive TEMPEST site: http://www.eskimo.com/~joelm/tempest.html

See related report on architectural data shielding: http://jya.com/datasec.htm
and US Army construction specs for EMP-shielding: http://jya.com/emp.htm


OVERLY
MANUFACTURING         
COMPANY

TEMPEST SERIES 60

E60/A48/F3 MULTI-FUNCTION RFI/EMI
SHIELDING/SOUND RATED/UL FIRE RATED DOOR

GENERAL DESCRIPTION AND SPECIFICATIONS

APPLICATIONS:

Tempest Series 60 Model E60/A48/F3 multi-function, aesthetically pleasing, high traffic, low closure force, RFI/EMI shielding/sound rated/U.L. fire rated doors are widely used in the aerospace and electronic industries as well as in embassies, consulates and critical government facilities where both voice and electronic equipment security are required.

RFI/EMI RESISTANCE

Shielding effectiveness tests on Tempest Series 60 door and frame assemblies were conducted in JULY 1990 at Elite Electronics Engineering Company, Downers Grove, Illinois. The Laboratory is qualified under the National Voluntary Accreditation Program (NVLAP) of the U.S. Bureau of Standards. The units were tested in accordance with MIL STD 285 and provide a minimum of 60 dB attenuation over the frequency range of 10 KHz to 1 GHz for the E and plane wave fields and from 16 dB at 10 KHz increasing to 75 dB at 200 MHz for the H field. Replaceable RFI/EMI gaskets provide continuous reliable shielding protection and require minimal maintenance.

SOUND TRANSMISSION LOSS:

Door and frame assemblies also carry an acoustical rating of STC 48. The units were tested and their performance certified by Riverbank Acoustical Laboratories in Geneva, Illinois. The Laboratory is qualified under the National Voluntary Accreditation Program (NVW) of the U.S. Bureau of Standards.

FIRE RESISTANCE:

All door and frame units are Underwriters Laboratories Inc. fire rated up to 3 Hour "A" under U.L. Standard 10b, Fire Tests of Door Assemblies. Rating must be specified at time of order.

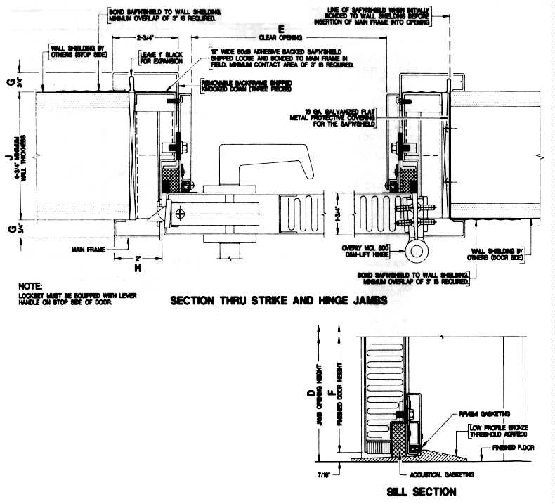
GASKETING SYSTEM:

Each door frame is equipped at head and jambs with RFI/EMI gaskets and composite "H" seal acoustical gaskets. Both gaskets are installed in a single retainer that allows each gasket to be adjusted separately to attain maximum effectiveness. The bottom of the door is also equipped with an RFI/EMI gasket and Super "H" acoustical gasket installed in a single semi-mortised type retainer that permits individual gasket adjustment. A continuous strip of conductive tape is bonded to the inside perimeter face of door at sides and top where RFI/EMI gaskets make contact. Acoustical frame gaskets seal against painted area of inside door face. Acoustical and RFI/EMI door bottom gaskets seal against a bronze low profile threshold.

CONSTRUCTION:

The frame assembly is comprised of a fully welded main frame with a three piece removable backframe and is designed for installation into a previously prepared or existing opening. Doors, frames and gasket retainers are formed from electro-galvanized steel sheets conforming to ASTM A-591. Work is assembled using all welded construction conforming to applicable requirements of [American Welding Society] AWS D1.1. Corners of main frame are mitered and welded.

Both doors and frames are supplied with all necessary internal hardware reinforcements. Frames are supplied with suitable anchors as may be required for installation in steel stud walls, masonry construction or shielding enclosure panels. A roll of adhesive-backed conductive non-woven fabric is provided for interfacing between the main frame and surrounding wall structure to maintain electrical and magnetic continuity.

FINISH:

Both doors and frames are supplied with prime paint finish. The conductive tape on inside perimeter face of door is masked with a removable strip to protect tape during finish painting in the field.

HARDWARE:

The door and frame unit is furnished complete with hardware, is mortised, reinforced and appropriately drilled and tapped per template for installation of hardware. The hinges are full mortise template, non-removable pin, stainless steel, cam-lift type of proprietary design. The lockset conforms to Federal Specification, Type 86 and 87 and meets ANSI A156.2 grade 1. The closer is a non-handed, multi-size type with adjustable sizes 2 thru 6 and can be installed regular parallel or top jamb mounted. The closer conforms to Federal Specification Type, FF-H-121 C, FF-H-121 D and ANSI type A156.4. Threshold is low profile type extruded bronze of proprietary design that provides a contact surface for the RFI/EMI and acoustical gaskets to seal against.

STANDARD HARDWARE SET CONSISTS OF:

1-1/2 Pr hinges-5" x 5" MCL-500 Cam-Lift x Stn. Stl. x Glass Bead Finish x NRP [Non-Removable Pin]

1 Mortise Lockset - Russwin 5059 x Citation Lever Handles x US26D (Dull Chrome) Finish-Latchbolt by key outside and lever handle inside at all times. Outside lever handle always rigid and serves as pull.

1 Closer - Norton 7500 x Al (Aluminum) Finish

1 Threshold - Low Profile No. ACRF1200 x Bronze

OPTIONS:

Electric strikes, position indicators, hinge sensors, other types of locks and/or lock functions, special locks and panic exit devices are available. Prices quoted upon application.

SHIPPING:

Each door and frame unit is pre-hung at factory and shipped as a complete unit. Lockset is installed in door but trim (lever handles, spindles, roses) are removed and packaged separately to avoid damage. Single units are packaged in a separate crate. Multiple orders of like units are bunched and crated.

STANDARD SIZES/DETAIL SECTIONS:

[Models and sizes, STC rating and shielding charts omitted].


INSTALLATION DETAIL:

A) Unit was pre-hung at factory and shipped as a complete assembly. To facilitate installation, remove door from the frame and carefully store in a safe area. To remove door, unfasten hinges from frame.

CAUTION: Determine interface condition before inserting frame into prepared opening. If wall shielding is on stop side of flame the conductive non-woven fabric is applied after frame is inserted and anchored into position. If wall shielding is on door side of frame the fabric must be applied to wall before inserting frame. In this case the unit as shipped will be supplied with three loose pieces of 18 ga. galvanized flat metal protective coverings for the Saf'n'Shield. Carefully save these and set them aside for use as directed in Installation Instructions INS-10, Figure 4, Note 7, Frame Installation Procedure No. 1. Refer to shop drawings and detailed instructions (copy of each included with shipment) for application of fabric interface.

B) Utilize anchors as provided for specified wall construction.

C) Use three temporary wood spreaders cut to exact opening width dimension. Locate at third points and sill.

D) Square and plumb frame, securing solidly into opening with supplied anchors.

E) Bond Saf'n'Shield to main frame per enclosed instructions and install 3 piece back frame.

F) Remove wood spreaders and reinstall door into frame. Fasten hinges to frame.

G) Install threshold with supplied fasteners and expansion shields.

H) Door was shipped with lock installed but trim (lever handles, roses, and spindles) were removed and packaged separately to prevent damage. Install trim per enclosed manufacturer's instructions.

I) Open and close door to insure it swings properly and that lockset functions correctly.

J) Install door closer following manufacturer's instructions.

K) Adjust acoustical and RFI/EMI gaskets per supplied instruction sheet INS-10.

L) Perform necessary field tests as may be required for RFI/EMI/Acoustical integrity.

[Installation diagram omitted.]

OVERLY MANUFACTURING COMPANY

(East) P.O. Box 70
574 West Otterman Street
Greensburg, Pa. 15601-0070      
Telephone (412) 834-7300
FAX (412) 830-2871
(West) P.O. Box 947
1501 South Mission Road
Fallbrook, Ca 92028-0901
Telephone (619) 723-1105
FAX (619) 728-7512


See also Overly's blast monograph and blast-resistant doors