16 July 2003. Add e-mail message and attachment.

4 July 2003. Add e-mail message, 6 drawings and organizational chart.

1 July 2003


From: "Bird-Furgeson, Sandra" <sbird@panynj.gov>
To: "Bird-Furgeson, Sandra" <sbird@panynj.gov>
Cc: "Volonakis, Tim" <tvolonak@panynj.gov>
Subject: REQUEST FOR QUALIFICATIONS/REQUEST FOR PROPOSALS - PERFORMANCE OF EXPERT PROFESSIONAL ARCHITECTURAL AND ENGINEERING SERVICES FOR THE PERMANENT WORLD TRADE CENTER PATH TERMINAL ON A TASK ORDER BASIS
Date: Tue, 1 Jul 2003 14:32:04 -0400

Dear Sir or Madame:

As requested, attached hereto is the RFQ/RFP package for A&E Services for the Permanent World Trade Center PATH Terminal. You will also receive the RFQ/RFP package, via UPS.  This package will include seven (7) additional attachments that are not included herein.

Please note that all proposal must be received no later than 12:00 P.M. on Tuesday, July 22, 2003.

Sincerely,

Sandra L. Bird-Furgeson
Senior Consultant Programs Specialist
Professional, Technical & Advisory Services Division
Procurement Department

THE PORT AUTHORITY OF NEW YORK & NEW JERSEY
One Madison Avenue, 7th Floor
New York, NY  10010
(212) 435-3979 voice
(212) 435-3992  fax

RFQ/RFP

Agreement

Attachment A

Attachment B


July 1, 2003

SUBJECT: REQUEST FOR QUALIFICATIONS/REQUEST FOR PROPOSALS - PERFORMANCE OF EXPERT PROFESSIONAL ARCHITECTURAL AND ENGINEERING SERVICES FOR THE PERMANENT WORLD TRADE CENTER PATH TERMINAL ON A TASK ORDER BASIS

Dear Sir or Madam:

The Port Authority of New York and New Jersey (“the Authority”) hereby invites your Proposal for performing expert professional architectural and engineering services for the preliminary engineering, final design, and post award services for the Permanent World Trade Center PATH Terminal. The resulting contract will be with the Port Authority. The initial authorization for services will be for performance through the Preliminary Engineering Phase only. Additional authorization for subsequent phases of work will be required, and is not guaranteed. The Federal Transit Administration (FTA) will be providing funding for the project; the selected Consultant must meet FTA requirements, which will form a part of the awarded Contract.

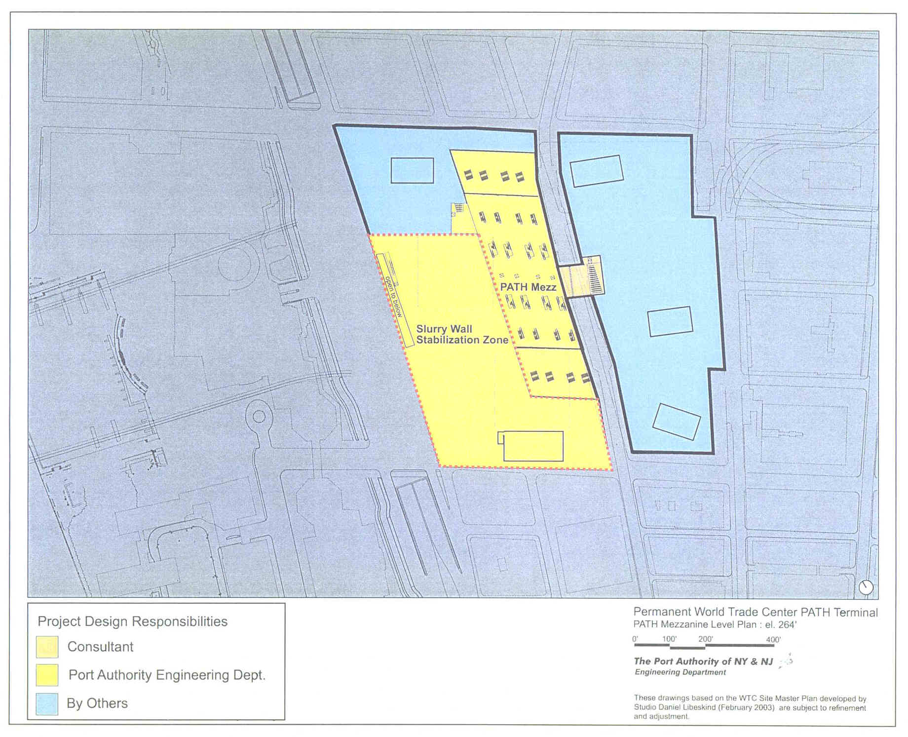
A WTC Site Master Plan is being developed by Studio Daniel Libeskind (SDL) to establish an overall framework for future development of the WTC Site, incorporating transportation, commercial, memorial, and cultural facilities, as well as public spaces and other infrastructure. Consistent with the overall WTC Site Master Plan, there shall be specific Architectural Design Guidelines for the Permanent WTC PATH Terminal that would be developed by SDL. The Guidelines will provide a framework for the Consultant to prepare a schematic design of the Permanent WTC PATH Terminal during the preliminary engineering phase. Architectural design would be the responsibility of the lead architectural consultant, as described in Attachment A. The Consultant's design will be reviewed by the Authority for compatibility with the overall WTC Site Master Plan and the Guidelines.

The Authority has identified this project to restore and enhance public transportation facilities and subgrade pedestrian connections that existed at the WTC complex prior to September 11, 2001. This project is proposed as a regional transportation hub consisting of PATH tracks and platforms, a mezzanine/fare zone level, a terminal entrance building with pedestrian circulation in all directions to adjacent streets, New York City Transit subways and future WTC site developments, as well as infrastructure to support the facility and its operation.

Attached hereto is a copy of an Authority Standard Agreement including Attachment A thereto which should be carefully reviewed by you, as it is the form of agreement that the Authority intends that you sign in the event of acceptance of your Proposal and which forms the basis for the submission of Proposals. You should therefore not make any changes in the Standard Agreement, nor restate any of its provisions in your Proposal or supporting material. The scope of the tasks to be performed by you, are set forth in Attachment A to the Authority’s Standard Agreement.

I.  PRE-QUALIFICATION REQUIREMENTS:

Proposals will only be considered from consultants meeting the following criteria:

II. Requirements and Information To Be Submitted

A.  Firms' Qualifications and Experience

Each Proposer shall provide documentation to demonstrate their ability to successfully complete this project by highlighting their experience and technical capabilities as required. The experience of the Proposer as related to meeting requirements described herein will be evaluated based upon submissions to include but not be limited to the following:

1. Demonstrate compliance with each of the pre-qualification requirements listed above.

2. Submit a statement indicating whether the consultant wishes to be pre-qualified as a single entity, or a joint venture. If a joint venture, submit all information required for a single entity for each participant in the joint venture.

3. Prepare a table that includes a minimum of three (3) urban transportation projects with the following headings:

a. Project Title

b. Primary Consultant

c. Project Manager

d. Date Started

e. Date Completed

f. Cost

g. Client

h.Contact Name and Phone Number (project reference)

4. Provide a brief narrative summary of each project identified in the table. Highlight any unique challenges or obstacles and how they were handled. Present any similarities to the proposed project.

5. Demonstrate ability, with specific project examples, to implement design guidelines and coordinate with a master plan process.

6. Provide a brief narrative summary including documentation and describe the role of the lead architectural firm on at least two (2) high profile transportation projects. Prepare a table similar to item 3 above.

7. Provide evidence that the Proposer has effectively and efficiently worked cooperatively with other consultants, contractors and stakeholders on large complex projects, towards implementation of a project design.

8. Demonstrate the firm’s ability to coordinate amongst multiple discipline subconsultants and resolve conflicts. Provide specific examples.

9. Your attention is directed to paragraph 22 of the Authority's Standard Agreement in which the Chief Engineer has stated the goals for Minority Business Enterprise participation in this project. Submit details on how you intend to meet these goals. A listing of certified MBE/WBE firms will be provided upon request.

B. Additional Discipline Requirements

1. The Consultant’s engineer who would provide the structural design must have a minimum of ten (10) years experience and must have performed and completed at least three (3) projects of comparable size, type and complexity in that discipline.

2. The same consulting firm shall perform all MEP tasks (with exception of electronics design). The Consultant’s engineer who would provide the electrical and mechanical design services must have a minimum of ten (10) years of experience and must have completed at least three (3) projects of comparable size, type and complexity in each discipline. The prior projects shall be for electrical systems and emergency generation plants for facilities at least 2,000,000 square feet. They shall have extensive design experience in heating and air conditioning systems for mass transit systems, emergency ventilation systems, transit station plumbing, fire protection, and vertical transportation systems. They shall also have demonstrated experience in all life safety matters including familiarity with NFPA 130.

3. The Consultant’s engineer who would provide the electronics design services must have extensive design experience in electronic system designs, including closed-circuit television (CCTV) surveillance systems, public address systems, and intercom systems.

4. The Consultant’s engineer who would provide the geotechnical engineering services must have fifteen (15) years experience in the design of heavy construction projects. They shall have demonstrated experience in the design of deep excavation support systems in an urban environment, foundations on rock, deep braced excavations, tied-back diaphragm walls, dewatering, underpinning, tunneling, ground treatment and instrumentation. They should also be experienced in the use of jet grouting for ground modification and groundwater control and waterproofing. In addition, experience shall demonstrate unique design aspects requiring unusual staging and design as a result of adjacent active facilities and major utilities.

5. The Consultant’s engineer who would provide the civil design services must have a minimum of ten (10) years of experience and must have performed and completed at least three (3) projects of comparable size, type, and complexity in that discipline. They shall also have demonstrated experience in the design and relocation of utilities including, but not limited to, storm, sanitary, subdrainage, gas, water, electrical, telephone, and fiber optics, within an urban area.

6. The Consultant’s engineer who would provide traffic engineering services, must have a minimum of ten (10) years experience and must have completed three (3) projects of comparable size, type and complexity in that discipline. They shall have demonstrated capability in pedestrian modeling, multi-modal transportation facility design, security applications for high volume pedestrian transportation facilities.

7. The Consultant’s engineer who would perform constructability analysis, must have a minimum of ten (10) years experience in performing constructability reviews of projects proposed for construction in an operating transit environment. They shall have demonstrated ability in the preparation of construction phased program schedules, that identify critical paths of individual projects and entire programs, sequence construction contracts and staging, and consider long lead materials and equipment.

C. Staff’s Qualifications and Experience

This section shall introduce the key personnel responsible for implementing the scope of work described in Attachment A. It shall demonstrate their ability to perform assigned tasks as required to successfully complete this project by highlighting their experience and technical capabilities, and shall include but not be limited to the following:

1. Project Manager

Provide a profile of the Project Manager to demonstrate that the individual has a minimum of ten (10) years experience and performed and completed at least three (3) projects of a comparable size, type, and complexity. Also, identify the main projects the individual has managed in the past two (2) years. Provide a resume (3 page maximum, single sided, 12 point or greater font size) that details his or her educational background, chronological history of employment, relevant licenses and certifications.

2. Other Key Personnel Experience

a.Detail the experience of key individuals responsible for the successful completion of the proposed project. Prepare an organization chart for this project that identifies the key individuals, their firm and office address, function, task responsibility and reporting relationships.

b. Include a profile of persons identified in the organization chart that describes how their experience and technical capabilities will assist in the successful completion of the proposed project. Attach a detailed resume for each individual that includes their educational background, chronological history of employment, relevant licenses and certifications. The resumes (2 page maximum, single sided, 12 point or greater font size) should clearly identify the years of experience in the field related to the tasks which the individual will be responsible for.

c. Any other additional information which the Proposer believes would be helpful in evaluating the Proposer’s qualifications.

D. Management Approach

This section shall describe in detail the Proposer’s approach to project management, which should include the following:

1. Provide an internal management hierarchy for program efficiency and project effectiveness, which includes a tracking system for deliverables and controlling costs.

2. Provide procedures for keeping the FTA/Authority team informed of issues and progress during project preparation.

3. Describe a program for coordination and plan of action for working with subconsultants and the master planning process.

4. Provide evidence of cooperative involvement with contracting parties on large, regional projects, including evidence of a tracking system and clear management structure for sharing project responsibilities, work allocation, oversight, deliverables, costs, and reporting responsibilities.

5. Staff-Hour Matrices (prepare the following tables):

Table I:  Staff-hours by task – For all Tasks A - F described in Section IV of Attachment A complete a table to include the following headings: Task, Task Leader, Estimated hours for Task Leader, total staff hours for task. Clearly indicating those tasks or partial tasks to be performed by subconsultants.

Table II: Staff-hours by firm – Complete a table to include the following headings: Firm, Total Staff Hours, MBE/WBE Status.

DO NOT FURNISH COST/PRICING INFORMATION AS PART OF YOUR WRITTEN PROPOSAL (UNLESS REQUESTED AFTER PROPOSAL SUBMISSION, SEE SECTION H BELOW)

E. Technical Approach

This section shall discuss, in detail, the Proposer’s technical strategy to complete all the required tasks described in Attachment A.

1. Demonstrate the technical adequacy and feasibility of the approaches, techniques, and methods proposed for solving the problems and completing the tasks and quality control procedures.

2. Discuss the work plan required to prepare the documents in accordance with the tasks described in Attachment A. Identify any additional tasks or modifications to specified tasks. Include any insight to support recommendations based on experience in the project area or with similar projects.

3. Discuss the purpose of each modifications and how it will enhance the proposed work.

F. Oral Presentation

After review of all proposal submissions, an oral presentation to the selection committee, and others as appropriate, may be requested. Selected Proposers will be notified, by the Authority 48 hours in advance. The presentation should be limited to 60 minutes, and include the material contained in your proposal. The presentation will be followed by an approximately 30-minute question and answer session. Proposer’s staff providing the presentation shall be led by the proposed Project Manager, who may be supported by no more than three other senior staff members who are proposed to work on this project.

G. Rating Criteria

The selection process by which a firm shall be selected for the performance of the subject services will be based on consideration of the following factors, listed in order of importance:

1. Depth and Quality of Firm’s Experience

2. Personnel Experience & Qualifications

3. Management Approach

4. Technical Approach

H.  Pricing And Compensation Proposal (DO NOT SUBMIT UNLESS REQUESTED)

After review by the Authority of all proposals received, the highest technically rated Proposer applying criteria 1-4, above, on the basis of written proposal and oral presentation (if required), will be requested to submit a concise pricing and compensation proposal within 48 hours of notification. This proposal should provide the following information in accordance with the Scope of Work presented in Attachment A. To be acceptable (prima facia), the cost proposal shall be single-sided, 12 point or greater font and packaged within a separate binding and shall include the following:

1. The "multiplier" referred to in the first line of subparagraph 7.A of the accompanying Standard Agreement including a breakdown of said multiplier, indicating all of its components (e.g., vacation, holiday, sick pay, worker's compensation, office rent, insurance, profit). This multiplier will be applicable for all Tasks.

2. The salary schedule, including job classifications, for, architectural, engineering and other technical personnel and billing rates of partners or principals referred to in said subparagraph 7.A. Subject to the adjustment provisions set forth in the Standard Agreement, these amounts will be applicable for all Tasks.

3.An estimated cost schedule for the performance of all Tasks, by Task. The Authority intends to agree with the selected proposer on a total “true upset” amount for Tasks A - D listed in Section IV of Attachment A to the Standard Agreement at the inception of the Agreement and on total “true upset” amounts for succeeding Tasks ordered by the Authority as they are ordered, to be principally based upon the estimated cost schedule submitted as part of the Cost Proposal.

4. An itemized estimate of out-of-pocket expenses for all Tasks, by Task.

5. The terms and conditions for the compensation of intended subconsultant(s) (including their multiplier, if applicable) and the estimated number of hours of subconsultant services for all Tasks, by Task.

6. Proposed limit on compensation for the performance of Tasks A - D listed in Section IV of Attachment A to the Standard Agreement.

7. Statement of proposed profit for all Tasks, by Task.

III. SUBMISSION INSTRUCTIONS

Please address your Proposal to: The Port Authority of New York and New Jersey, One Madison Avenue, 7th Floor, New York, NY 10010, Attention: Ms. Laurie Spencer, Senior Consultant Programs Specialist. You are requested to submit one (1) reproducible original and fifteen (15) copies of your Proposal in sufficient time so that they are received no later than 12:00 p.m. on Tuesday, July 22, 2003. If your proposal is to be delivered by messenger, please note that only individuals with proper identification (e.g., photo identification) will be permitted access to the Authority’s offices. Messengers without proper identification shall be turned away and their packages not accepted.

The Proposer shall submit a concise proposal meeting the following requirements:

1. To be acceptable (prima facie), this Proposal shall be of no more than 100 (one hundred) pages (single-sided using 12 point or greater font size), not including required resumes.

2. The document shall separate each section with a tab divider that is labeled in accordance with the letter of the criteria specified below.

3. Name and address of the consultant and the proposed subconsultants shall be submitted.

4. Name, title and telephone number of person to contact in the event that further information is required by the Authority shall be submitted. At any time after the opening of submittals, the Authority may request additional information relating to the consultant’s qualifications.

In accordance with Authority policy, we also request you include, in the front of your Proposal, a copy of the Agreement on Terms of Discussion (Attachment B), signed by an officer of your company.

If your firm is selected for performance of the subject services, the agreement you will be asked to sign, at that time, will include clauses entitled "Certification Of No Investigation (Criminal Or Civil Anti-Trust), Indictment, Conviction, Suspension, Debarment, Disqualification, Pre-qualification Denial Or Termination, etc; Disclosures Of Other Required Information" and "Non-Collusive Bidding And Code Of Ethics Certification; Certification Of No Solicitation Based On Commission, Percentage, Brokerage, Contingent Fee Or Other Fee" (A copy of the agreement is included herewith). The selected consultant shall upon executing said agreement, at time of award, be deemed to have made the certifications contained therein unless said consultant submits a statement with the agreement explaining why any such certification(s) cannot be made.

After review of all documents requested, the Authority will forward two (2) copies of the Agreement and Attachment A thereto to the selected firm who shall sign and return both copies. The return of one (1) copy executed by the Authority will effectuate the Agreement.

Should you have any questions, please e-mail them to Ms. Sandra Bird-Furgeson, Senior Consultant Programs Specialist at sbird@panynj.gov. Those questions, if any, must be submitted at least three (3) working days prior to the proposal due date specified above. Neither Ms. Furgeson, nor any other employee of the Port Authority is authorized to interpret the provisions of this RFP or accompanying documents or give additional information as to their requirements. If interpretation or additional information is required, it will be communicated by written addendum issued by the Manager, Professional, Technical & Advisory Services on behalf of the Port Authority and such writing shall form a part of this RFQ/RFP, or the accompanying documents, as appropriate.

There shall be no compensation for proposal preparation or presentation.

No rights accrue to any Proposer except under a duly authorized agreement for performance of the specified services.

The Authority reserves the unqualified right, in its sole and absolute discretion, to reject all Proposals, to undertake discussions and modifications with one or more consultants, to waive defects in Proposals, and to proceed with that Proposal or modified Proposal, if any, which in its judgment will, under all the circumstances, best serve the public interest.

Sincerely yours,

Tim Volonakis
Manager
Professional, Technical & Advisory Services Division
Procurement Department

Attachments


P.A. Agreement #407-03-***

Date

Firm Name
Address
Address

Attention:       Contact Name, Title

SUBJECT:    PERFORMANCE OF EXPERT PROFESSIONAL ARCHITECTURAL AND ENGINEERING SERVICES FOR THE PERMANENT WORLD TRADE CENTER PATH TERMINAL ON A TASK ORDER BASIS

Dear Mr./Ms. ***:

1.         The Port Authority of New York and New Jersey (hereinafter referred to as the "Authority") hereby offers to retain <FIRM1> (hereinafter referred to as "the Consultant" or "you") to provide expert professional services as more fully set forth in Attachment A, which is attached hereto and made a part hereof, on a Task Order basis. Funding for this Agreement is being provided by the Federal Transit Administration (FTA).

As used herein "Chief Engineer" shall mean the Chief Engineer or the Deputy Chief Engineer of the Authority, acting either personally or through their duly authorized representatives acting within the scope of the particular authority vested in them unless specifically stated to mean acting personally. The Chief Engineer does not guarantee the ordering of services beyond those described in Attachment A, Section IV, Tasks A-D (Preliminary Engineering Phase).

For the purpose of administering this Agreement, I have designated <DAR>, <TITLE>, to act as my duly authorized representative. The Project Manager for this project is <PM>, at <PHONE>.

2.         Your services hereunder shall include, but not be limited to, those specified in Attachment A, as ordered by the Chief Engineer.

2A.            In response to a request for specific services hereunder and prior to the performance of any such services, you shall submit to the Chief Engineer for approval an estimated cost based upon the rates forming a part of this Agreement and the applicable cost estimate previously submitted to the Authority as part of the proposal process for this Agreement, as well as a staffing analysis of such services to the Authority. Approval in writing of such cost and establishment of a maximum compensation or “true upset” amount for the services and direction from the Chief Engineer in writing to proceed shall effectuate the performance of services under this Agreement. Each such written approval in the form issued by the Chief Engineer shall constitute a Task Order under this Agreement. Preparation of the cost estimate and staffing analysis shall not be a compensable service hereunder

3.         Upon receipt of a copy of this Agreement executed by the Authority, you shall submit your specific Quality Control/Assurance Program for performance of the professional services specified in Attachment "A".

When services to be performed by the Consultant include the preparation of contract documents, or the performance of post award services, the Consultant shall submit his specific Quality Control/Assurance Program to the Engineer prior to the performance of said services. When the Consultant has completed preparation of any contract documents required hereunder he shall submit a letter to the Engineer certifying the Consultant's conformance with the aforementioned Quality Control/Assurance Program.

When the services to be performed by the Consultant include the preparation of computer aided design and drafting (CADD) documents, said documents must be prepared using the latest available revision of Autodesk's "AUTOCAD" software or Integraph's "Microstation" software unless otherwise noted in Attachment A.

When the services to be performed by the Consultant include the preparation of Architectural Graphics and said graphics are to be prepared using a computer system said system shall be a Macintosh. The graphics shall be prepared using the latest revision of the following software packages, as required: "Adobe Illustrator", "Quark Xpress", "Microsoft Word" and shall be submitted to the Authority on compact disks, 3.5 inch diskettes and/or as otherwise required.

4.         Your services shall be performed as expeditiously as possible and at the time or times required by the Chief Engineer, and shall, in any case, be completed in accordance with the schedule specified in the applicable Task Order. Time is of the essence in the performance of all your services under this Agreement.

5.         The Consultant shall meet and consult with Authority staff as requested by the Chief Engineer in connection with the services to be performed herein. Any Contract Drawings and Technical Specifications and other items to be submitted or prepared by the Consultant hereunder shall be subject to the review of the Chief Engineer. The Chief Engineer may disapprove, if in his sole opinion the said items are not in accordance with the requirements of this Agreement, sound engineering principles, or are impractical, uneconomical or unsuited in any way for the purpose for which the contemplated construction is intended. If any of the said items or any portion thereof are so disapproved, the Consultant shall forthwith revise them until they meet the approval of the Chief Engineer, but the Consultant shall not be compensated under any provision of this Agreement for performance of such revisions. No approval or disapproval or omission to approve or disapprove, however, shall relieve the Consultant of his responsibility under this Agreement to furnish in accordance with the schedule herein, a complete, practical, economical design and Contract Drawings and Technical Specifications, and corrections and changes therein which are best suited for the contemplated construction, are done in accordance with sound engineering principles and are signed and sealed by a licensed Professional Engineer.

6.         Unless otherwise specified in Attachment A or in a Task Order, in order to effectuate the policy of the Authority, the designs and the concepts in the Contract Drawings and Technical Specifications and other items to be submitted and all changes therein formulated by the Consultant shall comply with all provisions of Federal, State, municipal, local and departmental laws, ordinances, rules, regulations, and orders which would affect or control said designs and concepts if the construction were being performed for a private corporation, unless the Authority standard is more stringent, in which case the Authority standard shall be followed, or unless the Consultant shall receive a written notification to the contrary signed by the Chief Engineer personally, in which case the requirements of said notification shall apply.

7.         Your total compensation for all services under each issued Task Order shall not exceed the “true upset” amount established in each such Task Order. You shall inform the Chief Engineer when your compensation reaches 80% of such amount. You shall continue to render services to completion after the point when your compensation reaches 100% of such amount.

8.         As full compensation for all your services and obligations in connection with this Agreement, the Authority will pay you the total of the amounts computed under subparagraphs A, B, C and D below, subject to the limits on compensation and provisions set forth in paragraph 7 above.

            A.        An amount equal to <MULT> times the actual salaries paid by you to architects, engineers, designers, drafters or other professional and technical personnel but not partners, principals for time actually spent by them in the performance of services hereunder, plus an amount equal to the number of hours actually spent by partners and principals in the performance of services hereunder times the billing rate (no multiplier applied) described below but in each case excluding premium payments for overtime work or night work or for performing hazardous duty. Attached hereto is a schedule of actual salaries and titles of architects, engineers, designers, drafters or other permanent professional and technical personnel employed by you, as well as rates customarily billed for partners and principals on projects such as this. For compensation purposes under this Agreement, no said salary or amount shall exceed the salary or amount received by said personnel or rate customarily billed for a partner or principal as of the effective date of this Agreement unless the Chief Engineer has been notified in advance, in writing, of the increased salary, rate or amount and approves the increase. When requesting salary adjustments for one or more of its personnel, the Consultant shall submit his/her name, title, current direct hourly rate, proposed new direct hourly rate, resulting percentage increase, effective date and reason for the requested change. The Authority reserves the right of approval of all personnel, amounts and salaries of said personnel performing services under this Agreement. For adjustments submitted after the effective date of this Agreement approval will not be withheld if the Consultant demonstrates that increases in salary, or partner's or principal's rate or amount are in accordance with the program of periodic merit and cost of living increases normally administered by it. For the purposes of this agreement, the multiplier set forth in the first line of this sub-paragraph shall be fixed and not subject to increase for the performance of all contemplated services hereunder.

Notwithstanding the above, the multiplier set forth in the first line of this subparagraph shall be applied only in the case of personnel other than partners or principals who are permanent employees.

            B.        An amount equal to the premium payments for overtime work or night work or for performing hazardous duty, actually paid to partners, principals, architects, engineers, designers, drafters, or other professional and technical employees for time actually spent by them in the performance of services hereunder when such overtime or other premium payments have been demonstrated to be in accordance with the Consultant's normal business practice and have been authorized in advance by the Chief Engineer in writing. The Project Manager for the Authority shall have the right to authorize and approve premium payments up to a total amount of $1,000 per occasion. Payments above said total amount shall be subject to the prior written authorization of the Chief Engineer. Such premium payments to supervisory employees, who do not receive such payments in the Consultant's normal business practice shall not be given under this Agreement.

            C.        An amount equal to the amounts actually paid to subconsultants hereunder who have been retained after the written approval by the Chief Engineer of the subconsultant and the compensation to be paid the subconsultant. The Consultant shall submit a copy of the terms and conditions of the subconsultant's compensation (including multiplier, if applicable), as well as an estimate of the number of hours required by the subconsultant to perform his services, as part of any request for approval of the subconsultant.

            D.        An amount equal to the out-of-pocket expenses, approved in advance by the Chief Engineer, necessarily and reasonably incurred and actually paid by you in the performance of your services hereunder. Out-of-pocket expenses are expenses that are unique to the performance of your services under this Agreement and generally contemplate the purchase of outside ancillary services, except that for the purpose of this Agreement, out-of-pocket expenses do include amounts for mailing and delivery charges for submittal of drawings, specifications and reports; long distance telephone calls; rentals of equipment; travel and local transportation; and meals and lodging on overnight trips.

Notwithstanding the above the Authority will pay an amount approved in advance by the Chief Engineer and computed as follows for the reproduction of submittal drawings, specifications and reports:

1)      If the Consultant uses its own facilities to reproduce such documents, an amount computed in accordance with the billing rates the Consultant customarily charges for reproduction of such documents on agreements such as this, or

2)      If the Consultant uses an outside vendor for the reproduction of such documents, the actual, necessary and reasonable amounts for the reproduction of such documents.

Out-of-pocket expenses do not include expenses that are usually and customarily included as part of the Consultant's overhead. For the purposes of this Agreement out-of-pocket expenses do not include amounts for typing, utilization of computer systems, computer aided design and drafting (CADD), cameras, recording or measuring devices, flashlights and other small, portable equipment, safety supplies, phones, telephone calls, electronic messaging including FAX, Telex and telegrams, or expendable office supplies. Unless otherwise indicated, required insurance is not a reimbursable expense.

You shall obtain the Chief Engineer's written approval prior to making expenditures for out-of-pocket expenses in excess of $1,000 per specific expenditure and for all overnight trips which are reimbursable expenditures as set forth above. You shall substantiate all billings for out-of-pocket expenses in excess of $25 with receipted bills and provide said receipts with the appropriate billing.

"Salaries paid to employees" or words of similar import shall mean salaries and amounts actually paid (excluding payments or factors for holidays, vacations, sick time, bonuses, profit participations and other similar payments) to architects, engineers, designers, drafters or other professional and technical employees of the Consultant, for time actually spent directly in the performance of technical services hereunder and recorded on daily time records which have been approved by the employee's immediate supervisor, excluding the time of any employee of the Consultant to the extent that, the time of such employee of the Consultant is devoted to typing/word processing, stenographic, clerical or administrative functions. Such functions shall be deemed to be included in the multiplier referred to in subparagraph A above.

9.         You shall keep, and shall cause any subconsultants under this Agreement to keep, daily records of the time spent in the performance of services hereunder by all persons whose salaries or amounts paid thereto will be the basis for compensation under this Agreement as well as records of the amounts of such salaries and amounts actually paid for the performance of such services and records and receipts of reimbursable expenditures hereunder, and, notwithstanding any other provisions of this Agreement, failure to do so shall be a conclusive waiver of any right to compensation for such services or expenses as are otherwise compensable hereunder. The Authority shall have the right to audit all such records.

The Authority shall have the right to inspect your records, and those of your subconsultants, pertaining to any compensation to be paid hereunder, such records to be maintained by you and your subconsultants for a period of one year after completion of services to be performed under this Agreement.

10.       On or about the fifteenth day of each month, you shall render a bill for services performed and reimbursable out-of-pocket expenses incurred in the prior month, accompanied by such records and receipts as required, to the Project Manager. Each invoice shall bear your taxpayer number and the purchase order number(s) provided by the Engineer. Upon receipt of the foregoing, the Chief Engineer will estimate and certify to the Authority the approximate amount of compensation earned by you up to that time. As an aid to you the Authority shall, within fifteen days after receipt of such certification by the Chief Engineer, advance to you by check the sum certified minus all prior payments to you for your account, but subject to the limitation on compensation set forth in paragraph 7.

11. The Authority may at any time for cause terminate this Agreement as to any services not yet rendered, and may terminate this Agreement without cause upon three (3) days notice to you. You shall have no right of termination as to any services under this Agreement without just cause. Termination by either party shall be by certified letter addressed to the other at its address hereinbefore set forth. Should this Agreement be terminated by either party as above provided, you shall receive no compensation for any services not yet performed, but if termination is without fault on your part, the Authority shall pay you as the full compensation to which you shall be entitled in connection with this Agreement the amounts computed under paragraph 8, A, B, C, and D above for the services satisfactorily performed through the date of termination, but in no event shall the amounts to be paid to the Consultant under said paragraph exceed the amount provided for in Paragraph 7 above.

12.       As a member of the Design Team for the WTC Permanent PATH Station, without the express written approval of the Chief Engineer or the Engineering Program Manager, Downtown Restoration Program, you shall keep confidential, and shall require your subconsultants and your employees to keep confidential

a)  all information disclosed by the Authority or PATH or its consultants or contractors to you or

b)  developed by you or your subconsultants in the performance of services hereunder.

You may be required to execute, and have your employees, subconsultants and their employees execute, non-disclosure agreements as directed by the Authority concerning intellectual property and proprietary information of the Authority, PATH and third persons. Disclosure of any such information shall constitute a material breach of the Agreement. The obligation of confidentiality shall not however pertain to information

a)  which is in the public domain;

b)  information lawfully received from a third party; or

c)  information which must be disclosed under law, provided the Authority's General Counsel is first advised of the legal obligation or legal process.

13.       You shall not issue or permit to be issued any press release, advertisement, or literature of any kind, which refers to the Authority or the services performed in connection with this Agreement, unless you first obtain the written approval of the Chief Engineer. Such approval may be withheld if for any reason the Chief Engineer believes that the publication of such information would be harmful to the public interest or is in any way undesirable.

14.       Under no circumstances shall you or your subconsultant communicate in any way with any contractor, department, board, agency, commission or other organization or any person whether governmental or private in connection with the services to be performed hereunder except upon prior written approval and instructions of the Chief Engineer, provided, however that data from manufacturers and suppliers of material shall be obtained by you when you find such data necessary unless otherwise instructed by the Chief Engineer.

15.       Any services performed for the benefit of the Authority at any time by you or on your behalf, even though in addition to those described herein, even if expressly and duly authorized by the Authority, shall be deemed to be rendered under and subject to this Agreement (unless referable to another express written, duly executed agreement by the same parties), whether such additional services are performed prior to, during or subsequent to the services described herein, and no rights or obligations shall arise out of such additional services.

16.       No certificate, payment (final or otherwise), acceptance of any work nor any other act or omission of the Authority or the Chief Engineer shall operate to release you from any obligations under or upon this Agreement, or to estop the Authority from showing at any time that such certificate, payment, acceptance, act or omission was incorrect or to preclude the Authority from recovering any money paid in excess of that lawfully due, whether under mistake of law or fact or to prevent the recovery of any damages sustained by the Authority.

17.       During the term of this Agreement, you shall not participate in any way in the preparation, negotiation or award of any contract to which it is contemplated the Authority may become a party (other than a contract for your own services to the Authority) or participate in any way in the review or resolution of a claim in connection with such a contract, if you have a substantial financial interest in the contractor or potential contractor of the Authority or if you have an arrangement for future employment or for any other business relationship with said contractor or potential contractor, nor shall you at any time take any other action which might be viewed as or give the appearance of a conflict of interest on your part. If the possibility of such an arrangement for future employment or for another business arrangement has been or is the subject of a previous or current discussion or if you have reason to believe such an arrangement may be the subject of future discussion, or if you have any financial interest, substantial or not, in a contractor or potential contractor of the Authority, and your participation in the preparation, negotiation or award of any contract with such a contractor or the review or resolution of a claim in connection with such a contract is contemplated or if you have reason to believe that any other situation exists which might be viewed as or give the appearance of a conflict of interest, you shall immediately inform the Chief Engineer in writing of such situation giving the full details thereof. Unless you receive the specific written approval of the Chief Engineer, you shall not take the contemplated action which might be viewed as or give the appearance of a conflict of interest. In the event the Chief Engineer shall determine that the performance by you of a portion of your services under this Agreement is precluded by the provisions of this numbered paragraph, or a portion of your said services is determined by the Chief Engineer to be no longer appropriate because of such preclusion, then the Chief Engineer shall have full authority on behalf of both parties to order that such portion of your services not be performed by you, reserving the right, however, to have the services performed by others. Your execution of this Agreement shall constitute a representation by you that at the time of such execution you know of no circumstances, present or anticipated, which come within the provisions of this paragraph or which might be viewed as or give the appearance of a conflict of interest on your part.

18.       All mylars of the contract drawings, originals of technical specifications, estimates, reports, records, data, charts, documents, renderings, computations, computer tapes or discs or computer programs, and other papers of any type whatsoever, whether in the form of writing, figures or delineations, which are prepared or compiled in connection with this Agreement, shall become the property of the Authority, and the Authority shall have the right to use or permit the use of them and any ideas or methods represented by them for any purpose and at any time without other compensation than that specifically provided herein. The Consultant hereby warrants and represents that the Authority will have at all times the ownership and rights provided for in the immediately preceding sentence free and clear of all claims of third persons whether presently existing or arising in the future and whether presently known to either of the parties of this Agreement or not. This Agreement shall not be construed, however, to require the Consultant to obtain for the Authority the right to use any idea, design, method, material, equipment or other matter which is the subject of a valid patent, unless such patent be owned by the Consultant or one of his employees, or his subconsultant or the subconsultant's employees, in which case such right shall be obtained without additional compensation. Whether or not your Proposal is accepted by the Authority, it is agreed that all information of any nature whatsoever which is in any way connected with the services performed in connection with this Agreement, regardless of the form of communication, which has been or may be given by you or on your behalf, whether prior or subsequent to the execution of this Agreement, to the Authority, its Commissioners, officers, agents or employees, is not given in confidence and may be used or disclosed by or on behalf of the Authority without liability of any kind, except as may arise under valid existing or pending patents, if any.

19.       If research or development is furnished in connection with the performance of this Agreement and if in the course of such research or development patentable subject matter is produced by the Consultant, his officers, agents, employees, or subconsultants, the Authority shall have, without cost or expense to it, an irrevocable, non-exclusive royalty-free license to make, have made, and use, either itself or by anyone on its behalf, such subject matter in connection with any activity now or hereafter engaged in or permitted by the Authority. Promptly upon request by the Authority, the Consultant shall furnish or obtain from the appropriate person a form of license satisfactory to the Authority, but it is expressly understood and agreed that, as between the Authority and the Consultant the license herein provided for shall nevertheless arise for the benefit of the Authority immediately upon the production of said subject matter, and shall not await formal exemplification in a written license agreement as provided for above. Such license agreement may be transferred by the Authority to its successors, immediate or otherwise, in the operation or ownership of any real or personal property now or hereafter owned or operated by the Authority but such license shall not be otherwise transferable.

20.       You shall promptly and fully inform the Chief Engineer in writing of any patents or patent disputes, whether existing or potential, of which you have knowledge, relating to any idea, design, method, material, equipment or other matter related to the subject matter of this Agreement or coming to your attention in connection with this Agreement.

21.       This Agreement being based upon your special qualifications for the services herein contemplated, any assignment, subletting or other transfer of this Agreement or any part hereof or of any monies due or to become due hereunder without the express consent in writing of the Authority shall be void and of no effect as to the Authority, provided, however, that you may sublet services to subconsultants with the express consent in writing of the Chief Engineer. All persons to whom you sublet services, however, shall be deemed to be your agents and no subletting or approval thereof shall be deemed to release you from your obligations under this Agreement or to impose any obligation on the Authority to such subconsultant or give the subconsultant any rights against the Authority.

22.       The Authority has a long-standing practice of encouraging Minority Business Enterprises (MBEs) and Women Business Enterprises (WBEs) to seek business opportunities with it, either directly or as subconsultants or subcontractors. "Minority-owned business" or "MBE" means a business entity which is at least 51 percent owned by one or more members of one or more minority groups, or, in the case of a publicly held corporation, at least 51 percent of the stock of which is owned by one or more members of one or more minority groups; and whose management and daily business operations are controlled by one or more such individuals who are citizens or permanent resident aliens. "Women-owned business" or "WBE" means a business which is at least 51 percent owned by one or more women, or, in the case of a publicly held corporation, 51 percent of the stock of which is owned by one or more women; and whose management and daily business operations are controlled by one or more women who are citizens or permanent resident aliens.

"Minority group" means any of the following racial or ethnic groups:

                     (1)       Black persons having origins in any of the Black African racial groups not of Hispanic origin;

                     (2)       Hispanic persons of Puerto Rican, Mexican, Dominican, Cuban, Central or South American culture origin, regardless of race;

                     (3)       Asian and Pacific Islander persons having origins in any of the original peoples of the Far East, Southeast Asia, the Indian subcontinent or the Pacific Islands;

                     (4)       American Indian or Alaskan Native persons having origins in any of the original peoples of North America and maintaining identifiable tribal affiliations through membership and or community identification.

The Chief Engineer has set a goal of 12 percent participation by qualified and certified MBEs and 5 percent to qualified and certified WBEs on consultant projects.

To be "certified" a firm must be certified by the Authority's Office of Business and Job Opportunity.

In order to facilitate the meeting of this goal, the Consultant shall use every good faith effort to utilize subconsultants who are certified MBEs or WBEs to the maximum extent feasible.

The Authority has a list of certified MBE/WBE service firms, which is available to you at your request. The Consultant will be required to submit to the Authority's Office of Business and Job Opportunity for certification the names of MBE/WBE firms he proposes to use who are not on the list of certified MBE/WBE firms.

23.       NOTIFICATION OF SECURITY REQUIREMENTS

The Port Authority of New York & New Jersey has facilities, systems, and projects where terrorism or other criminal acts may have a significant impact on life safety and key infrastructures. The Authority reserves the right to impose multiple layers of security requirements on the Consultant, its staff and subconsultants and their staffs depending upon the level of security required, as determined by the Authority. These security requirements may include but are not limited to the following:

The Authority may impose, increase, and/or upgrade security requirements for the Consultant and its staff and subconsultants during the term of this agreement to address changing security conditions and/or new governmental regulations.

24.       With regard to services performed at the former World Trade Center site, the Consultant assumes the following distinct and several risks, whether they arise from the acts or omissions (whether negligent or not) of the Consultant or its subconsultants, of the Authority or of third persons or from any other cause, and whether such risks are within or beyond the control of the Consultant excepting only risks which arise solely from affirmative acts done by the Authority subsequent to the execution of this Agreement which actual and willful intent to cause the loss, damage and injuries described in subparagraphs A through D below:

A.        The risk of loss or damage to Authority property arising out of or alleged to arise out of or in connection with the performance of services hereunder:

B.        The risk or loss or damage to any property of the Consultant or its subconsultants arising out of or alleged to arise out of or in connection with the performance of services hereunder;

C.        The risk of claims, arising out of or alleged to arise out of or in connection with the performance of services hereunder, whether made against the Consultant or its subconsultants or the Authority, for loss or damage to any property of the Consultant’s agents, employees, subcontractors, subconsultants, materialmen or others performing services hereunder:

D.        The risk of claims, just or unjust, by third persons made against the Consultant or its subconsultants or the Authority on account of injuries (including wrongful death), loss or damage of any kind whatsoever arising or alleged to arise out of or in connection with the performance of services hereunder (whether or not actually caused by or resulting from the performance of the services hereunder) including claims against the Consultant or its subconsultants or the Authority for the payment of workers’ compensation, whether such claims are made and whether such injuries, damage and loss are sustained at any time both before and after the completion of services hereunder.

The Consultant shall indemnify the Authority against all claims described in subparagraphs A through D above and for all expense incurred by it in the defense, settlement or satisfaction thereof, including expenses of attorneys. If so directed, the Consultant shall defend against any claim described in subparagraphs B, C and D above, in which event he shall not without obtaining express advance permission from the General Counsel of the Authority raise any defense involving in any way jurisdiction of the tribunal, immunity of the Authority, governmental nature of the Authority or the provisions of any statues respecting suits against the Authority, such defense to be at the Consultant’s cost.

The provisions of this clause shall also be for the benefit of the Commissioners, officers, agents and employees of the Authority, so that they shall have all the rights which they would have under this clause if they were named at each place above at which the Authority is named, including a direct right of action against the Consultant to enforce the foregoing indemnity, except, however, that the Authority may at any time in its sole discretion and without liability on its part cancel the benefit conferred on any of them by this clause, whether or not the occasion for invoking such benefit has already arisen at the time of such cancellation.

Neither the completion of services hereunder nor the making of payment (final or otherwise) shall release the Consultant from his obligations under this clause. Moreover, neither the enumeration in this clause or the enumeration elsewhere in this Agreement of particular risks assumed by the Consultant or of particular claims for which he is responsible shall be deemed (a) to limit the effect of the provisions of this clause or of any other clause of this Agreement relating to such risks or claims, (b) to imply that he assumes or is responsible for risks or claims only of the type enumerated in this clause or in any other clause of this Agreement, or (c) to limit the risks which he would assume or the claims for which he would be responsible in the absence of such enumerations.

This paragraph shall not limit the responsibilities the Consultant would have in the absence of this paragraph. No third party rights are created by the Agreement, except to the extent that the Agreement specifically provides otherwise by use of the words "benefit" or "direct right of action".

25.       COMMERCIAL GENERAL LIABILITY INSURANCE AND WORKERS’ COMPENSATION INSURANCE

            A.        Commercial General Liability Insurance

1.         The Consultant shall take out and maintain at his own expense Commercial General Liability Insurance including but not limited to Premises-Operations, Completed Operations and Independent Contractor coverages and Comprehensive Automobile Liability Insurance (covering any, owned, non-owned, and hired autos) in limits of not less than $2,000,000 combined single limit per occurrence for Bodily Injury Liability and Property Damage Liability. The contractual liability in the Commercial General Liability Policy shall include coverage within 50 feet of railroad property. In addition, the policy shall include the Authority [and the Port Authority Trans-Hudson Corporation (PATH)] as an additional insured and shall contain a provision that the policy may not be canceled, terminated or modified without thirty days written advance notice to the Project Manager as noted below. Moreover, the Commercial General Liability policy shall not contain any provisions (other than a Professional Liability exclusion, if any) for exclusions from liability other than provisions for exclusions from liability forming part of the standard, basic unamended and unendorsed Commercial General Liability policy.

2.         Further, the Commercial General Liability Policy shall be specifically endorsed to prohibit the insurance carrier from raising any defense involving in any way jurisdiction of the tribunal, immunity of the Authority [or PATH], governmental nature of the Authority or the provisions of any statutes respecting suits against the Authority [or PATH] without obtaining express written advance permission from the General Counsel of the Authority.

3.         The Consultant shall have the policy endorsed to eliminate any exclusions applying to the under-ground property, explosion and collapse hazards.

4.         Additional Coverages: The Consultant shall have the Commercial General Liability Policy endorsed when required by the Engineer for specific services hereunder and include the additional premium cost thereof as an our-of-pocket expense.

a)  The Consultant shall have the policy endorsed to eliminate any exclusions on account of ownership, maintenance, operation, use, loading or unloading of watercraft.

b)  Railroad Protective Public Liability Insurance (AAR-AASHTO form) with respect to the operations of the Consultant or any of his subconsultants in the name of the National Railroad Passenger Corporation and the Consolidated Rail Corporation in the amount as determined by the Authority.

B.        Workers' Compensation Insurance

1.         The Consultant shall also take out and maintain Workers' Compensation Insurance in accordance with the requirements of law.

2.         Additional Coverages: The Consultant shall have the policy endorsed when required by the Engineer for specific services hereunder and include the additional premium cost thereof as an out-of-pocket expense:

a)  United States Longshoremen's and Harbor Workers' Compensation Act Endorsement.

b)  Coverage B Endorsement - Maritime (Masters or Members of the Crew of Vessels), in limits of not less than $1,000,000 per occurrence.

3.         The Consultant shall have the policy include Amendments to Coverage B, Federal Employers' Liability Act, in limits of not less than $1,000,000 per occurrence.

C.        Compliance

1)        Prior to commencement of work at the site, the Consultant shall deliver a certificate from his insurer evidencing the policies of the above insurance, stating the title of this Agreement, the agreement number, and containing a separate express statement of compliance with each of the requirements above set forth in this clause, to the Risk Management/Treasury of the Authority at the following address:

Port Authority of NY & NJ
Supervisor, Contract Insurance
Risk Management/Treasury
225 Park Avenue South – 12th Floor
New York, NY 10003

2)        The Consultant shall also forward a copy of the aforementioned certificate to the Project Manager, at the following address:

PROJECT MANAGER
Port Authority of NY & NJ
ADDRESS
CITY, ST ZIP

3)        Upon request of the Manager, Risk Management/Treasury Division, the Consultant shall furnish to the Authority a certified copy of each policy itself, including the provisions establishing premiums.

26.       CERTIFICATION OF NO INVESTIGATION (CRIMINAL OR CIVIL ANTI-TRUST), INDICTMENT, CONVICTION, DEBARMENT, SUSPENSION, DISQUALIFICATION AND DISCLOSURE OF OTHER INFORMATION

By signing this Agreement, the Consultant and each person signing on behalf of the Consultant certifies, and in the case of a joint proposal each party thereto certifies as to its own organization, that the Consultant and each parent and/or affiliate of the Consultant has not:

            A.        been indicted or convicted in any jurisdiction;

            B.        been suspended, debarred, found not responsible or otherwise disqualified from entering into any agreement with any governmental agency or been denied a government agreement for failure to meet standards related to the integrity of the Consultant;

            C.        had an agreement terminated by any governmental agency for breach of agreement or for any cause based in whole or in part on an indictment or conviction;

            D.        ever used a name, trade name or abbreviated name, or an Employer Identification Number different from those inserted in the Proposal;

            E.        had any business or professional license suspended or revoked or, within the five years prior to proposal opening, had any sanction imposed in excess of $50,000 as a result of any judicial or administrative proceeding with respect to any license held or with respect to any violation of a federal, state or local environmental law, rule or regulation;

            F.        had any sanction imposed as a result of a judicial or administrative proceeding related to fraud, extortion, bribery, proposal rigging, embezzlement, misrepresentation or anti-trust regardless of the dollar amount of the sanctions or the date of their imposition; and

            G.        been, and is not currently, the subject of a criminal investigation by any federal, state or local prosecuting or investigative agency and/or a civil anti-trust investigation by any Federal, state or local prosecuting or investigative agency.

27.       NON-COLLUSIVE PROPOSING, AND CODE OF ETHICS CERTIFICATION, CERTIFICATION OF NO SOLICIATION BASED ON COMMISION, PERCENTAGE, BROKERAGE, CONTINGENT OR OTHER FEES

By proposing on this Agreement, each Consultant and each person signing on behalf of any Consultant certifies, and in the case of a joint proposal, each party thereto certifies as to its own organization, that:

            A.        the prices in its proposal have been arrived at independently without collusion, consultation, communication or agreement for the purpose of restricting competition, as to any matter relating to such prices with any other consultant or with any competitor;

            B.        the prices quoted in its proposal have not been and will not be knowingly disclosed directly or indirectly by the Consultant prior to the official opening of such proposal to any other consultant or to any competitor;

            C.        no attempt has been made and none will be made by the Consultant to induce any other person, partnership or corporation to submit or not to submit a proposal for the purpose of restricting competition;

            D.        this organization has not made any offers or agreements or taken any other action with respect to any Authority employee or former employee or immediate family member of either which would constitute a breach of ethical standards under the Code of Ethics dated April 11, 1996 (a copy of which is available upon request to the individual named in the clause hereof entitled "Consultant’s Questions"), nor does this organization have any knowledge of any act on the part of an Authority employee or former Authority employee relating either directly or indirectly to this organization which constitutes a breach of the ethical standards set forth in said Code; and

            E.        no person or selling agency other than a bona fide employee or bona fide established commercial or selling agency maintained by the Consultant for the purpose of securing business, has been employed or retained by the Consultant to solicit or secure this Agreement on the understanding that a commission, percentage, brokerage, contingent, or other fee would be paid to such person or selling agency.

The foregoing certifications shall be deemed to be made by the Consultant as follows:

*          if the Consultant is a corporation, such certification shall be deemed to have been made not only with respect to the Consultant itself, but also with respect to each parent, affiliate, director, and officer of the Consultant, as well as, to the best of the certifier’s knowledge and belief, each stockholder of the Consultant with an ownership interest in excess of 10%;

*          if the Consultant is a partnership, such certification shall be deemed to have been made not only with respect to the Consultant itself, but also with respect to each partner.

Moreover, the foregoing certifications, if made by a corporate Consultant, shall be deemed to have been authorized by the Board of Directors of the Consultant, and such authorization shall be deemed to include the signing and submission of the proposal and the inclusion therein of such certification as the act and deed of the corporation.

In any case where the Consultant cannot make the foregoing certifications, the Consultant shall so state and shall furnish with the signed proposal a signed statement, which sets forth in detail the reasons therefor. If the Consultant is uncertain as to whether it can make the foregoing certifications, it shall so indicate in a signed statement furnished with its proposal, setting forth in such statement the reasons for its uncertainty.

Notwithstanding that the Consultant may be able to make the foregoing certifications at the time the proposal is submitted, the Consultant shall immediately notify the Authority in writing during the period of irrevocability of proposals on this Agreement or any extension of such period of any change of circumstances which might under this clause make it unable to make the foregoing certifications or require disclosure. The foregoing certifications or signed statement shall be deemed to have been made by the Consultant with full knowledge that they would become a part of the records of the Authority and that the Authority will rely on their truth and accuracy in awarding this Agreement. In the event that the Authority should determine at any time prior or subsequent to the award of this Agreement that the Consultant has falsely certified as to any material item in the foregoing certifications or has willfully or fraudulently furnished a signed statement which is false in any material respect, or has not fully and accurately represented any circumstance with respect to any item in the foregoing certifications required to be disclosed, the Authority may determine that the Consultant is not a responsible Consultant with respect to its proposal on the Agreement or with respect to future proposals on Authority agreements and may exercise such other remedies as are provided to it by the Agreement with respect to these matters. In addition, Consultants are advised that knowingly providing a false certification or statement pursuant hereto may be the basis for prosecution for offering a false instrument for filing (see, e.g. New York Penal Law, Section 175.30 et seq.). Consultants are also advised that the inability to make such certification will not in and of itself disqualify a Consultant, and that in each instance the Authority will evaluate the reasons therefor provided by the Consultant.

28.       CONSULTANT ELIGIBILITY FOR AWARD OF AGREEMENTS –DETERMINATION BY AN AGENCY OF THE STATE OF NEW YORK OR NEW JERSEY CONCERNING ELIGIBILITY TO RECEIVE PUBLIC AGREEMENTS

Consultants are advised that the Authority has adopted a policy to the effect that in awarding its agreements it will honor any determination by an agency of the State of New York or New Jersey that a consultant is not eligible to propose on or be awarded public agreements because the consultant has been determined to have engaged in illegal or dishonest conduct or to have violated prevailing rate of wage legislation.

The policy permits a consultant whose ineligibility has been so determined by an agency of the State of New York or New Jersey to submit a proposal on a Port Authority agreement and then to establish that it is eligible to be awarded an agreement on which it has submitted a proposal because (i) the state agency determination relied upon does not apply to the consultant, or (ii) the state agency determination relied upon was made without affording the consultant the notice and hearing to which the consultant was entitled by the requirements of due process of law, or (iii) the state agency determination was clearly erroneous or (iv) the state agency determination relied upon was not based on a finding of conduct demonstrating a lack of integrity or violation of a prevailing rate of wage law.

The full text of the resolution adopting the policy may be found in the Minutes of the Authority's Board of Commissioners meeting of September 9, 1993.

29.       NO GIFTS, GRATUITIES, OFFERS OF EMPLOYMENT, ETC.

During the term of this Agreement, the Consultant shall not offer, give or agree to give anything of value either to a Port Authority employee, agent, job shopper, consultant, construction manager or other person or firm representing the Port Authority, or to a member of the immediate family (i.e., a spouse, child, parent, brother or sister) of any of the foregoing, in connection with the performance by such employee, agent, job shopper, consultant, construction manager or other person or firm representing the Port Authority of duties involving transactions with the Consultant on behalf of the Port Authority, whether or not such duties are related to this Agreement or any other Port Authority agreement or matter. Any such conduct shall be deemed a material breach of this Agreement.

As used herein “anything of value” shall include but not be limited to any (a) favors, such as meals, entertainment, transportation (other than that contemplated by the Agreement or any other Port Authority agreement), etc. which might tend to obligate the Port Authority employee to the Consultant, and (b) gift, gratuity, money, goods, equipment, services, lodging, discounts not available to the general public, offers or promises of employment, loans or the cancellation thereof, preferential treatment or business opportunity. Such term shall not include compensation contemplated by this Agreement or any other Port Authority agreement. Where used herein, the term “Port Authority” shall be deemed to include all subsidiaries of the Port Authority.

The Consultant shall insure that no gratuities of any kind or nature whatsoever shall be solicited or accepted by it and by its personnel for any reason whatsoever from the passengers, tenants, customers or other persons using the Facility and shall so instruct its personnel.

In addition, during the term of this agreement, the Consultant shall not make an offer of employment or use confidential information in a manner proscribed by the Code of Ethics and Financial Disclosure dated April 11, 1996 (a copy of which is available upon request to the Office of the Secretary of the Port Authority).

The Consultant shall include the provisions of this clause in each subagreement entered into under this Agreement.

30.       CONFLICT OF INTEREST

During the term of this agreement, the Consultant shall not participate in any way in the preparation, negotiation or award of any contract (other than a contract for its own services to the Authority) to which it is contemplated the Port Authority may become a party, or participate in any way in the review or resolution of a claim in connection with such a agreement if the Consultant has a substantial financial interest in the consultant or potential contractor of the Port Authority or if the Consultant has an arrangement for future employment or for any other business relationship with said contractor or potential contractor, nor shall the Consultant at any time take any other action which might be viewed as or give the appearance of conflict of interest on its part. If the possibility of such an arrangement for future employment or for another business arrangement has been or is the subject of a previous or current discussion, or if the Consultant has reason to believe such an arrangement may be the subject of future discussion, or if the Consultant has any financial interest, substantial or not, in a consultant or potential consultant of the Authority, and the Consultant’s participation in the preparation, negotiation or award of any agreement with such a consultant or the review or resolution of a claim in connection with such a agreement is contemplated or if the Consultant has reason to believe that any other situation exists which might be viewed as or give the appearance of a conflict of interest, the Consultant shall immediately inform the Chief Engineer in writing of such situation giving the full details thereof. Unless the Consultant receives the specific written approval of the Chief Engineer, the Consultant shall not take the contemplated action which might be viewed as or give the appearance of a conflict of interest. In the event the Chief Engineer shall determine that the performance by the Consultant of a portion of its services under this Agreement is precluded by the provisions of this numbered paragraph, or a portion of the Consultant’s said services is determined by the Chief Engineer to be no longer appropriate because of such preclusion, then the Chief Engineer shall have full authority on behalf of both parties to order that such portion of the Consultant’s services not be performed by the Consultant, reserving the right, however, to have the services performed by others and any lump sum compensation payable hereunder which is applicable to the deleted work shall be equitably adjusted by the parties. The Consultant’s execution of this document shall constitute a representation by the Consultant that at the time of such execution the Consultant knows of no circumstances, present or anticipated, which come within the provisions of this paragraph or which might otherwise be viewed as or give the appearance of a conflict of interest on the Consultant’s part. The Consultant acknowledges that the Authority may preclude it from involvement in certain disposition/privatization initiatives or transactions that result from the findings of its evaluations hereunder or from participation in any agreements which result, directly or indirectly, from the services provided by the Consultant hereunder.

31.       DEFINITIONS

As used in sections 26 to 30 above, the following terms shall mean:

Affiliate - Two or more firms are affiliates if a parent owns more than fifty percent of the voting stock of each of the firms, or a common shareholder or group of shareholders owns more than fifty percent of the voting stock of each of the firms, or if the firms have a common proprietor or general partner.

Agency or Governmental Agency - Any federal, state, city or other local agency, including departments, offices, public authorities and corporations, boards of education and higher education, public development corporations, local development corporations and others.

Investigation - Any inquiries made by any federal, state or local criminal prosecuting agency and any inquiries concerning civil anti-trust investigations made by any federal, state or local governmental agency. Except for inquiries concerning civil anti-trust investigations, the term does not include inquiries made by any civil government agency concerning compliance with any regulation, the nature of which does not carry criminal penalties, nor does it include any background investigations for employment, or Federal, state, and local inquiries into tax returns.

Officer - Any individual who serves as chief executive officer, chief financial officer, or chief operating officer of the consultant by whatever titles known.

Parent - An individual, partnership, joint venture or corporation, which owns more than 50% of the voting stock of the consultant.

32.       The entire agreement between the parties is contained herein and no change in or modification, termination or discharge of this Agreement in any form whatsoever shall be valid or enforceable unless it is in writing and signed by the party to be charged therewith, or his duly authorized representative, provided, however, that termination in the manner hereinbefore expressly provided shall be effective as so provided.

33.       No Commissioner, officer, agent or employee of the Authority shall be charged personally by you with any liability or held liable to you under any term or provision of this Agreement, or because of its execution or attempted execution or because of any breach hereof.

34.       This Agreement shall be governed by and construed in accordance with the Laws of the State of New York.

35.       If the foregoing meets with your approval, please indicate your acceptance by signing the original and the additional enclosed copy in the lower left-hand corner and returning them to the Authority.

Very truly yours,

THE PORT AUTHORITY OF
NEW YORK AND NEW JERSEY

Francis J. Lombardi, P.E.
Chief Engineer

Date:   _________________

ACCEPTED:

FIRM NAME

By: _____________________________

Title: __________________________

Date: ___________________________


ATTACHMENT A

PERFORMANCE OF EXPERT PROFESSIONAL
ARCHITECTURAL AND ENGINEERING SERVICES FOR THE
PERMANENT WORLD TRADE CENTER PATH TERMINAL
ON A TASK ORDER BASIS

I. INTRODUCTION

The services of the Consultant shall consist of assisting The Port Authority of New York and New Jersey (the Authority) in the performance of Preliminary Engineering, Final Design, and post award services, for the design and construction of the Permanent World Trade Center PATH Terminal (Terminal). The initial authorization for the performance of services under this Agreement will be limited to the performance of the Preliminary Engineering phase as described in Section IV, Tasks A-D. Additional authorization(s) for performance of the subsequent tasks in the Final Design phase will be provided on a “task order” basis as determined by the Authority, and are not guaranteed. This project is subject to receipt of funding to be provided through the Federal Transit Administration (FTA), and environmental review pursuant to the National Environmental Policy Act (NEPA).

When operating, PATH provides the primary transit link to Lower Manhattan from New Jersey; serving local markets in Hudson and Essex counties and providing a key link for New Jersey Transit rail commuters on routes at major transit hubs at Newark Penn Station and Hoboken Terminal. Prior to September 11, 2001, over 67,000 PATH riders boarded PATH at the World Trade Center (WTC) station each day. The facility was operating at capacity during peak rush hours. Although the temporary WTC PATH station (currently under construction) will allow restoration of PATH service to Lower Manhattan in November 2003, it will not fully restore all of the facilities and capacities that previously existed at the World Trade Center.

The Authority has identified over $2 billion in transportation recovery projects at the WTC to restore and enhance mass transit services to and from Lower Manhattan, and to provide for other transportation functions. In particular, the Permanent WTC PATH Terminal project is needed to re-establish and enhance transportation facilities and infrastructure that existed at the WTC complex prior to September 11, 2001. The project will greatly contribute to the recovery of Lower Manhattan by meeting the transportation needs of commuters, residents, and visitors to the proposed WTC Memorial.

As part of the immediate recovery of Lower Manhattan, a temporary PATH station at the World Trade Center (WTC) site has been designed and is now being constructed. The temporary WTC PATH station project is a stand-alone transit facility, that was designed only to provide the most basic services. The Permanent WTC PATH Terminal project is proposed to be a fully developed, regional transportation hub that will be coordinated with existing and future transportation infrastructure, WTC site development, and development of the surrounding area.

The Permanent WTC PATH Terminal will be a world-class transportation facility. The Terminal will be fully climate controlled and feature sufficient openness to provide passengers with a sense of security as well as clear visual orientation to both interior and exterior building functions. The Terminal facilities shall incorporate sustainable architectural design, introduce natural light where possible, conform to Americans with Disabilities Act (ADA) requirements, and ensure safety and security as required by code, and engineering analysis.

Prior to September 11, 2001, more than 150,000 pedestrians traveled through the World Trade Center complex each day, including over 100,000 daily PATH and subway riders. The future WTC PATH Terminal will act as a gateway to Lower Manhattan potentially for as many as 250,000 pedestrians daily (upon full build-out of WTC site). The Terminal will include subgrade pedestrian connections that will connect the PATH lines with the New York City Transit (NYCT) subway system, surrounding site development, and other transit facilities. These connections would extend from the WTC site into the World Financial Center (WFC) Winter Garden on the west; the planned MTA/NYCT Fulton Street Transit Center on the east; 7 World Trade Center and Tribeca to the north; and Wall Street and the Financial District on the south.

World Trade Center Site Master Plan:

On February 27, 2003 the "Memory Foundations" concept by Studio Daniel Libeskind was announced by Governor George E. Pataki, Mayor Michael Bloomberg, the Lower Manhattan Development Corporation (LMDC), and the Authority as the draft master plan concept for redevelopment of the WTC site. This Master Plan is now being refined and finalized by Studio Daniel Libeskind (SDL) in conjunction with the Authority, LMDC, and other public and private entities to establish parameters for future development of transportation, memorial and cultural facilities, public spaces, infrastructure, and commercial development at the site. The WTC PATH Terminal is a primary component of the Master Plan and would establish a grand point of arrival for the WTC site for daily commuters, workers, and local residents, as well as visitors to the memorial and cultural facilities.

Consistent with the overall WTC Site Master Plan, there is anticipated to be Architectural Design Guidelines for the Permanent WTC PATH Terminal that would be developed by SDL. The specific Architectural Design Guidelines will provide a framework for the Consultant to perform a complete preliminary design of the Terminal during the Preliminary Engineering phase. The Consultant shall be solely responsible for the complete architectural design (including all involved engineering disciplines) of specific components (as described in Section III, below) of the WTC PATH Terminal project. The Consultant's design will be reviewed by the Authority for compatibility with both the overall WTC Site Master Plan and the Architectural Design Guidelines for the Terminal (which are expected to be substantially complete within a few months from the start of the Consultant's work).

II. PROJECT SCOPE OVERVIEW

The project scope of the Permanent WTC PATH Terminal, approximately 650,000 SF, shall incorporate the components broadly outlined below. Please also refer to the attached diagrams that depict the areas of the Consultant’s responsibility. The Consultant shall be responsible for the architectural and engineering design of certain project components, and shall collaborate with Authority staff performing the design for other project components of the Terminal. Roles and responsibilities with respect to the design of the Terminal are described in Section III below.

The Terminal project includes the following physical components:

• Site Preparation and Site Stabilization

• PATH Facilities (tracks, platforms, mezzanine)

• PATH Terminal Building (Transit Hall)

• North/South Pedestrian Connections (including Liberty Park Underpass)

• East/West Pedestrian Connections (including World Financial Center Underpass)

The project also includes the following major specialty areas that would be integrated throughout the Terminal:

• Security

• Sustainable Design

• Vertical Transportation and Conveyances

• Public Wayfinding Systems

A. Permanent WTC Site Stabilization and Site Preparation

The damage resulting from the destruction of the World Trade Center requires significant repair and stabilization to ensure the permanent structural integrity of the Terminal foundations. Site preparation work also needs to be performed to provide for efficient reconstruction of the major components of the WTC complex, including the Permanent WTC PATH Terminal. Work includes repairs and permanent reinforcement of the slurry wall that surrounds the WTC site (WTC "bathtub") including structural slabs to provide lateral bracing under a plan to be developed by the Authority, demolition of remaining damaged structures, underpinning of the NYCT 1/9 and N/R subway tunnels for pedestrian connections, new site foundations, and related excavation on the WTC site (particularly the area east of the NYCT 1/9 subway).

B. PATH Tracks and Platforms

The PATH tracks, platforms, and mezzanine levels would all be located within the WTC "bathtub" as they were prior to September 11, 2001. At platform level, work includes full restoration of three station platforms to accommodate 10-car PATH trains (the current temporary platforms accommodate 8-car trains), and adding a fourth platform and possibly another (sixth) track that would enable passengers to enter and leave PATH cars from both sides. The project also includes installation of permanent escalators, elevators and stairs. In addition, the wooden tie and ballast track system leading to the platforms would be replaced with a direct fixation, concrete track bed.

C. PATH Mezzanine Level

The mezzanine/fare zone level would be expanded to allow for multiple points of entry/exit from platform level, including construction of a two-story mezzanine with east and west fare zones, additional turnstiles and expansion of operational spaces and Authority police facilities. This will include installation of heating and air conditioning systems and vertical circulation components (escalators and elevators). These facilities would provide all-weather protection and facilitate circulation for PATH riders, restoring functions that existed prior to September 11, 2001. New fare collection equipment utilizing the latest technology would also be installed.

D. PATH Terminal Building (Transit Hall)

This component is defined by the creation of a multi-level transit hall (above and below grade), approximately 28,000 SF footprint, including highly visible connections to all mass transit services and streets, which would enable passengers to connect quickly and easily to subway, bus and PATH services, similar to transit functions provided at Grand Central Terminal in midtown Manhattan. The PATH Terminal Building would incorporate direct entrances to the PATH lines, as well as the NYCT IRT 1/9, BMT N/R, and IND E subway lines, and would accommodate pedestrian connections extending in all directions to connect with the rest of the WTC site development and adjacent streets. The PATH Terminal will be configured in such a way as to not preclude potential future transit facilities and connections on or immediately adjacent to the WTC site.

E. Pedestrian Connections

The pedestrian connections, approximately 170,000 SF, are a system of underground public circulation spaces connecting the WTC site development with PATH, the NYCT transit system, the World Financial Center Winter Garden, and various street access points around the perimeter of the site. The connections would be environmentally controlled spaces that would introduce natural light where possible. Pedestrian access through the space will be accommodated by multiple locations of vertical circulation including high performance escalators, moving walkways, and glass elevators where possible.

a. North/South Pedestrian Connections

Conceptually, these include circulation corridors located east of the NYCT 1/9, extending north from the Terminal Building to provide access to the NYCT E subway line, and to Church Street (at the corner of Vesey Street). Other north-south pedestrian circulation corridors would be located west of the NYCT 1/9, extending north from the east-west corridor in the area of the World Trade Center bathtub to provide access to future World Trade Center site development, 7 World Trade Center, and Vesey Street. A Liberty Park underpass would extend south from the PATH Terminal Building to provide access to the NYCT N/R subway lines and a southeastern link under Church Street to connect with Liberty Park.

b. East/West Pedestrian Connections

Conceptually, these would include circulation corridors extending from the PATH Terminal Building west to the World Financial Center’s Winter Garden. This fare-free concourse would be developed as a major public transportation space and provide access to World Trade Center site development. The eastern portion of this connection would provide direct access to PATH lines, the planned NYCT Fulton Street Transit Center (incorporating the NYCT 2/3, 4/5, A/C and J/M/Z subway lines), as well as potential future mass transit lines. The western portion of this connection would extend to the future World Trade Center memorial, and West Street. An underpass would extend below West Street to connect with the World Financial Center (WFC) and Winter Garden, and improve access to the expanded World Financial Center Ferry Terminal being constructed by the Port Authority. The potential location of this World Financial Center underpass would not preclude a future depressed configuration for West Street.

F. Street Entries

The Terminal would provide various street entrances on Church, Greenwich, Vesey, and Liberty Streets. These entrances are either contained within the building base or are free standing as kiosks in exterior public spaces. Each entrance connects the Terminal with the neighborhoods in and around Lower Manhattan.

G. Specialty Areas

a. Security

A security strategy, and physical components required to implement that strategy are to be integrated throughout the project design, in interior and exterior public areas and operational spaces, to provide appropriate levels of protection against various threat scenarios. Mitigation measures may include blast protection using protective construction, CCTV systems, physical intrusion protection, and chemical, biological, and radiological security.

Note: Due to the sensitive nature of this particular analysis, documents produced including all back-up calculations, data, and other materials may be subject to confidentiality restrictions and produced as separate packages.

b. Sustainable Design

Principles of Sustainable Design are to be integrated for the entire scope of work for all project components and shall be incorporated with related construction stage services and through building commissioning. Sustainable design scope shall conform to Sustainable Guidelines, to be established by the Authority and shall include, but may not be limited to the following:

• Energy efficient systems

• Indoor Environmental Quality

• Operations and Maintenance Considerations

• Material and Resource Conservation (including construction)

• Water Conservation

c. Vertical Transportation and Conveyance Systems

As the vertical circulation and conveyance systems are critical to the successful functioning of the Terminal and pedestrian connections, the elements selected to comprise these systems must be heavy duty, reliable, maintainable, and not negatively impact passenger security within the station.

d. Public Wayfinding Systems

A wayfinding and information program, that is intelligent, continuous, and dynamic as well as static, will be developed to direct passengers to a variety of destinations. Emerging technology will be utilized to incorporate this wayfinding system, with multi-media displays of transit information, news and advertising. In order to advance the design process, the Authority will make available to the Consultant, previous planning studies of these project components. These studies, including technical analyses, address conceptual designs and issues related to the project components and specialty areas discussed above.

In tandem with these studies, the Consultant will be provided information from other WTC site planning efforts currently under way that have identified common site utility infrastructure needed to support the transportation facilities, as well as the overall future WTC site redevelopment program, including commercial office and retail development, open public space and a significant WTC Memorial. These studies, analyses, and reports will be in addition to the WTC Site Master Plan and the specific Architectural Design Guidelines for the WTC PATH Terminal previously described.

III. PROJECT DESIGN RESPONSIBILITIES

To produce the design of the project components and specialty areas described in Section II in an expeditious and timely manner, it is anticipated that the Consultant shall provide design services for the Permanent WTC PATH Terminal in collaboration with the Authority’s (in-house) design staff. As previously indicated, all design work shall be consistent with the WTC Site Master Plan and the Architectural Design Guidelines for the WTC PATH Terminal (that are expected to be substantially complete within a few months from the start of the Consultant's work). The following describes the respective roles and responsibilities of major groups involved in design management and coordination, and design preparation of the Permanent WTC PATH Terminal project. Please also refer to the attached Organization Structure chart, included herewith and made a part hereof.

A. The Authority’s Priority Capital Programs Department

The Director, Priority Capital Programs (PCP) and PCP staff are responsible for overall implementation of the Permanent WTC PATH Terminal program, as part of an overall Downtown Restoration Program. PCP staff are involved in establishing and controlling the project scope, schedules, and budgets; as well as interfacing with all internal (Authority and PATH) staff and external entities (including the FTA, LMDC, WTC net lessees, MTA/NYCT and other public and private entities) to guide and advance the design and construction in relation to operational, financial, legal, business and other public objectives of the program.

B. WTC Site Master Plan Architect

Studio Daniel Libeskind (SDL) will be the Master Plan Architect responsible for preparation of the final WTC Site Master Plan, and is expected to have an ongoing review and oversight role. SDL shall function as the coordinating entity for WTC site plan elements, providing input and guidance to the various public and private entities responsible for the implementation of specific components, including the transportation, memorial, cultural, commercial development programs. Consistent with the overall WTC Site Master Plan, there is anticipated to be specific Architectural Design Guidelines for the Permanent WTC PATH Terminal that would be developed by SDL, to establish the framework for the architectural and engineering design work by the Consultant and others.

C. The Authority’s Engineering Department - Program Management Division

The Engineering Program Manager (EPM) and his staff will be responsible for the overall management and coordination of all project design activities of the Consultant and in-house Engineering Department design staff. The EPM staff will insure the coordination and collaboration of work amongst all Consultant and in-house design staff, during the performance of their respective design roles and responsibilities. The EPM staff will also provide coordination with the WTC Master Plan Architect through the Priority Capital Programs Department.

D. The Authority’s Engineering Department - Design Staff

The Authority’s Engineering Department will perform, with its in-house design staff, the Preliminary Engineering and Final Design for PATH facilities (platforms, mezzanine, tracks), including interfaces with other WTC site and surrounding area development. Said staff will also perform the Preliminary Engineering and Final Design for WTC site stabilization and site preparation, work within the existing WTC bathtub including diaphragm (slurry) slabs, tie back wall supports, and any excavation and demolition.

E. Architecture & Engineering Consultant

The Consultant shall perform the Preliminary Engineering, and (only upon additional authorization from the Authority) the Final Design of the WTC PATH Terminal Building and most of the pedestrian connections. The Consultant's work shall include (but is not be limited to) all of the architecture and engineering design disciplines listed in Section IV. Architectural design for these WTC PATH Terminal components would be the responsibility of the Consultant’s lead architectural consultant. It is required that the Consultant’s Mechanical Electrical Plumbing (MEP) services shall be provided by a single entity.

The Consultant's general project responsibilities shall also include (but may not be limited to) development of a Basis of Design Report, Preliminary Engineering documents, and (if further authorized by the Authority) the Final Design and contract documents, all including meeting participation, cost estimating, report preparation, preparation of drawings and specifications, construction schedule and construction cost estimates, post award services, as well as related briefings, reviews, and presentations.

F. Major Design Responsibilities of the Consultant

As indicated above, the Consultant shall provide significant design services for the WTC PATH Terminal Building and most of the pedestrian connections, which are primarily located to the east of the existing WTC bathtub and NYCT 1/9 subway structure, and would include underpinning of that subway line as a major project element. The following highlights major design activities to be performed by the Consultant, that are more fully detailed in Section IV:

1. Architectural

a. Design of new transportation facilities that meet intent of the WTC Site Master Plan framework and adherence to Architectural Design Guidelines for the WTC PATH Terminal (to be prepared by others).

b. Prepare an overall code analysis for the WTC PATH Terminal

c. Ongoing coordination with other elements of the WTC Site Master Plan, including memorial and commercial development

d. Develop and incorporate design criteria for all specialty areas listed in Section II, B, above.

e. Analyze project implementation issues relative to staging and schedule.

2. Structural/Civil/Geotechnical Engineering

a. Accommodate security criteria (to be provided to the Consultant by the Authority) throughout the structural design.

b. Design for any permanent lateral support for diaphragm walls as required to implement the Terminal project.

c. Develop design methodologies for tunneling/underpinning under Church St., Vesey St., and the IRT 1/9 subway consistent with the WTC Site Master Plan and Architectural Design Guidelines.

d. Perform subsurface investigations for new structures and present findings.

e. Provide analysis and design necessary for all existing structures (e.g., the temporary WTC PATH Station, NYCT 1/9 subway tunnel), as affected by each of the anticipated stages of construction of the terminal. Perform staging and sequencing design to minimize disruption of service to active PATH and MTA facilities as well as local adjacent streets and utilities.

3. Pedestrian Traffic Engineering

a. Analyze flows and their relation to corridor widths and access points

b. Verify number and size and evaluate location of vertical circulation elements

c. Identify areas requiring maintenance of traffic and protection of pedestrians in and around the transit facilities, such as protective enclosures, detours and diversions, or other special devices

d. Develop computer based pedestrian models demonstrating and evaluating the operation of proposed facility designs.

e. Determine application and design of security treatments for high volume pedestrian flow and congregating areas including perimeter barriers, access, control and patron screening.

4. Mechanical/Electrical/Plumbing

a. Prepare computational fluid dynamics (CFD) and other modeling including emergency ventilation and smoke control for PATH facilities, including the PATH projections (subgrade portals under West Street)

b. Design HVAC systems, building management control systems, storm water management systems, ventilation systems, and domestic water systems.

c. Provide design for electrical power systems and electronic systems, including fire protection and SCADA, emergency backup for life safety systems, and tertiary power sources

d. Coordinate with other WTC Site development to establish how all WTC site utility systems would tap into originating sources based on a plan to be developed.

5. Vertical Circulation and Conveyances

Recommend and prepare designs for APTA escalators, ADA elevators, and moving walkways.

6. Communications

a. Recommend and prepare designs of systems for CCTV, radios, access controls, fire alarm systems, public address systems, and vertical circulation controls.

b. Evaluate how all systems would interface with the central PATH HOBAN control center (in Jersey City).

7. Construction Cost Estimates and Schedules

a. Prepare construction cost estimates at 15%, 30%, 60% and 90% of completion the total design.

b. Prepare construction schedules including staging, and phasing impacts, at 15%, 30%, 60%, and 90% of completion of the total design, as well as final contract documents. Identification of elements that need to be coordinated with other public and private entities in the overall WTC site redevelopment.

c. Reconcile cost estimates with other cost estimates to be developed (independently) by others

8. Sustainable Design

a. Complete studies for certain sustainable design elements such as water conservation, energy, and resource renewal methodologies.

b. Preparation of certain life cycle and cost/benefit analysis as part of sustainable design studies in Preliminary Engineering.

c. Incorporate sustainable design recommendations throughout the project design as appropriate

H. Other Consultant Design Responsibilities

The Consultant shall also participate in a collaborative design effort with Authority Engineering Department (in-house) design staff during Preliminary Engineering, and (if authorized by the Authority) the Final Design stages on all program components identified for development by in-house staff. The project components to be designed in-house are anticipated to include the PATH mezzanine and platforms, all PATH related track work and signal systems, and structural design for any new aspects of slurry wall foundations, as well as repairs and rehabilitation of the existing WTC bathtub slurry walls.

IV. DESCRIPTION OF CONSULTANT'S TASKS

Upon authorization from the Authority to proceed with the performance of services hereunder the Consultant shall submit a schedule (subject to the approval of the Authority) for performance of services consistent with the milestones contained in Section V, below. Said schedule shall identify all required meetings and submissions.

TASK A. MEETINGS

1. Meetings will typically take place at Port Authority offices. The Authority's Downtown Restoration Program offices are currently located at 115 Broadway, NY, NY. Other primary Port Authority office locations are located at 3 Gateway Center, Newark, NJ, as well as 225 Park Avenue South, NY, NY.

2. Consultant shall schedule and attend quarterly performance meetings with the Authority and parties associated with the project and principal of Professional Firm to review performance, discuss staffing of Project and plans for the upcoming quarter. Prepare a summary record of each meeting and initiate and implement any required follow-up action.

3. Schedule and attend an orientation meeting at the beginning of the Preliminary Engineering Phase and the Final Design Phase with the Authority and all Key Personnel and other feasible personnel of the Consultant and the Consultant’s Subconsultants who will be working on the Project in such phase, to assure complete understanding of the goals, schedules, and objectives.

4. Attend bi-weekly meetings throughout the Preliminary Engineering Phase and the Final Design (Construction Documents) Phase, which will include design progress review, discussions, conferences, or presentations requested or required to complete design work. Prepare agendas for all the meetings, and submit to the Authority two working days in advance of the meetings.

5. Attend all required meetings, discussions, conferences, or presentations, such as internal Authority meetings, meetings with state or city authorities, community representatives, or others requested or required to complete the work.

6. Submit brief minutes to the Authority of all meetings (both formal and informal) held during the Preliminary Engineering and Final Design Phases within three business days of the meeting. Minutes will be accepted upon review, discussion and Port Authority approval at the subsequent meeting.

7. Attend weekly Construction Phase meetings, as well as other Construction Phase meetings if authorized for Task E.

TASK B. FIELD VERIFICATION AND SURVEY

1. Conduct a field inspection and survey of the World Trade Center site and associated project areas.

2. Verify existing field conditions including taking all appropriate field measurements of existing surfaces and topographical survey information of the site and nearby adjacent area as appropriate.

3. Prior to inspection meet with Authority staff to review Authority data relevant to the inspection.

4. Provide all equipment including rigging, scaffolds and ladders as required to inspect the structure and to maintain traffic under and over the structure. Staging of inspection work may be required.

5. Submit copies of completed field findings on inspection reporting forms (which will be provided by the Consultant and approved by the Port Authority) and meet with Authority staff to discuss those findings.

6. Conduct a field inspection and/or layout test pits as necessary to verify and identify utility location and alignment.

TASK C. BASIS OF DESIGN REPORT

The Consultant shall prepare a Basis of Design Report (BDR) to be reviewed and approved by the Authority, consistent with the Architectural Design Guidelines for the WTC PATH Terminal. The BDR should establish the scope, relationships, forms, size and appearance of the project through Preliminary Engineering submittals, and indicate the coordinated development of the project across all professional disciplines.

1. The Consultant shall review the WTC Site Master Plan and the Architectural Design Guidelines for the WTC PATH Terminal (expected to be substantially complete within a few months from the start of the Consultant's work).

2. The Consultant shall prepare a Basis of Design Report for all disciplines that shall include but may not be limited to Design Criteria, Code Analysis (see the following item 3), Program Requirements for project components, a summary of scope of work, design and construction schedule(s), list of issues requiring resolution (decisions required to advance design progress), graphics depicting key scope elements or issues, executive summary and identified alternates for analysis. Upon approval of the Basis of Design Report, the Consultant may be directed to proceed with performance of Preliminary Engineering (Task C). Applicable codes and standards shall include, but are not limited to those contained in section IV, C, below.

3. Consultant shall prepare a detailed code analysis report (as a separate component of the Basis of Design Report) to include a NFPA 130 Analysis and NYC Building Code Analysis for the program. The report shall include all life safety requirements, evaluations, calculations, construction classifications, use groups, and engineered analyses required for special conditions.

TASK D. PRELIMINARY ENGINEERING DOCUMENTS

Authority Stage II Design

The Preliminary Engineering documents to be prepared by the Consultant based upon the approved Basis For Design Report shall include, but are not limited to: drawings, technical evaluations, calculations, construction cost estimates, and construction schedules, and presentation materials for approval by the Authority. A complete Preliminary Engineering document package shall include design development of all architectural and engineering disciplines components up to a 30% level of total design completion (which is inclusive of both the Preliminary Engineering and Final Design phases). This task shall also include the following:

1. General Requirements

a. In developing the design, the Consultant shall consider availability of materials, equipment and labor, construction sequencing and scheduling, economic analysis of construction and operations, maintenance requirements and energy conservation. The Consultants design shall comply with all Authority requirements. In the case of a conflict the more stringent requirement shall apply. All drawings shall be prepared at a final working scale (to be determined and approved by the Authority) and shall be sufficiently detailed to explain all decisions that have been made for the project. The Consultant shall coordinate the work of all involved disciplines and shall be responsible for the resolution of any discrepancies as approved by the Authority.

b. The Consultant shall present the Preliminary Engineering Package to Authority staff and others as required by the Authority.

c. The Preliminary Engineering submittal shall include but may not be limited to drawings, outline specifications, three-dimensional sketches, 3D CADD renderings, sample boards with material selections for approval, scope, alternates, add/alternates and options, models, animations, calculations and reports.

d. Drawings: Coordinated design development drawings at a working scale sufficiently detailed to explain the design intent. Detailing shall be sufficient to allow an accurate cost estimate to be made. Major equipment not in scope (for clearances, space requirements, power requirements, etc.) should be depicted for coordination purposes.

e. The following items shall be shown on the Preliminary Engineering drawings for all disciplines:

• Major demolition and removals

• Hazardous material removals

• Major construction partitioning or protection

• General phasing and sequencing of installations

f. The Preliminary Engineering documents shall be submitted for Authority review at 50% and 100% levels of development for this Phase (or 15% and 30% of total design completion).

2. Site Utilities / Infrastructure

a. Layout of all site electrical power, storm and sanitary systems including existing and proposed utility locations and intended storm and wastewater disposal points.

b. Include types and one-line schematic distribution diagrams and locations of all underground utilities (including capacity and condition of existing utilities) and a statement of adequacy of same.

c. Combined site and/or utility plans shall also show all related site elements such as vaults, curbs, steps, grating and associated site drainage with proposed levels and elevations, existing and proposed surface treatments.

3. Architectural

a. Detailed building plans for every level (including roof ), to include the following:

• Location of major or typical new penetrations

• Partition configurations and types

• Alterations required for accessibility

• All aspects of fire safety and fire protection configuration

• Location of rated partitions

• Compartmentation

• Separations

• Egress routes, occupancy calculations

• Reconfigurations and improvements

b. Space allocation plans for every level of the project

c. Reflected ceiling plans for Public Spaces, Typical Floors and Special Areas including typical locations for all ceiling items: lighting, soffits, detectors, sprinkler heads, speakers, diffusers, ceiling material patterns and any other ceiling element.

d. Large Scale Floor Plans indicating:

• Building cores elements such as: Stairs, Toilet Rooms, Elevators, MEP Spaces, Shafts, Janitors’ Closets, Typical Exterior Wall

• Special Use Spaces such as Police Areas, Retail

• Public Spaces such as Lobbies, Escalator, Elevators, Moving Walkways locations and framing

e. Building Section(s) indicating:

• Large Scale Sections, including ceiling conditions and floor cell

• Exterior Wall

• Typical Conditions

• Non-Typical Conditions

• Stair Shafts

• Elevator Hoistways

• Loading Dock

• Vertical Transportation Diagram

• Exterior Building Elevations (Direct View)

• Large Scale Exterior Building Elevations

f. Exterior Wall drawings indicating Typical, Grade-Level, Entrances, Special Ornamental Elements

g. Large Scale Interior Elevations including

• Public Spaces

• Toilet Rooms

• Elevator Cabs

• Special Areas

• Atrium

• Other

h. Preliminary hardware plans

i. Materials - Provide a preliminary finish schedule and preliminary color and materials selection boards for all interior and exterior of public spaces and building interiors and exteriors. Provide finish specifications and samples.

j. Models/Presentation Materials as approved by the Authority

• All presentation material shall be of scale and quality sufficient for significant public presentations.

• Color elevations or other representations of significant spaces shall be provided.

• Graphic presentation (drawings and renderings) material shall be in electronic formats for use in various programs such as PowerPoint and other print media.

• 3D animations shall be required for significant project components such as the PATH Terminal Building.

• Architectural Presentation Models shall be required for public display and shall be constructed at architectural scales no less than 1/8”=1’0 minimum for project details and 1/32” min for site models.

4. Landscape (Interior)

a. Floor plan(s), sections and elevations of landscape and hardscape concepts, with typical planting layouts and details, preliminary layouts of irrigation systems

b. Outline specifications for planting and maintenance agreements

c. Catalogue cuts and typical details for furniture and other accessories located within the public areas

5. Graphics/Wayfinding/Signage

a. Develop preliminary design standards manual and signage specifications for typical signage, such as room signage (e.g. number, name, function, application) egress signage (exit signs, egress information signs, painting, arrows, lines, colors, application), code compliance information signage (fire code signs, stair numbering, no smoking, occupancy limits), way-finding directional signage and informational signs, both permanent and temporary based upon standards furnished by the Authority.

b. Develop a Wayfinding system for public Wayfinding signage and graphic specification controls manual and specification for review and approval by the Authority. Provide preliminary message schedule and signage layout indicating typical sign sizes and messages.

6. Sustainable Design and Analysis

The planning and design of buildings, equipment, systems, and services shall conform to current Authority and emerging resource efficiency and sustainability guidelines identified in the Basis of Design Report. The design shall demonstrate responsible environmental behavior that will promote ‘green buildings’. The WTC PATH Terminal should seek to obtain a LEED certification award. The Consultant shall provide a detailed report identifying design and construction elements that are included and the point rating to receive a LEED award.

a. Energy Efficiency

(1) Apply energy efficient design strategies to the building envelope. Optimize the design of the building envelope through a systematic evaluation of options to find the best combination of strategies that will cost effectively improve performance.

(2) Evaluate building loads and determine building’s most significant energy requirements.

(3) Perform energy simulation modeling such as DOE 2.1. Develop a ‘base case’ building that represents energy code minimum design against which design options for energy conservation are measured.

(4) Study Daylighting opportunities as well as lighting and controls provisions.

b. Indoor Environmental Quality Considerations

(1) Identify methods and systems to improve air quality, interior lighting and thermal comfort in public spaces and operational paces. Identify ways to utilize maximum outdoor air and eliminate unhealthy emissions from building materials.

(2) Study ways to reduce noise and vibration during facility operation and construction and propose appropriate mitigation measures.

c. Material and Resource Conservation

Recommend ‘green building’ materials that are made from recycled or renewable resources, are themselves recyclable, and that have been manufactured in a manner that is least damaging to the environment. Materials should be consistent with EPA procurement guidelines and have low energy consumption

d. Water Conservation

(1) The Consultant shall investigate emerging technologies and equipment and systems design that further promote sustainable buildings and can further reduce resource consumption, waste and impact on the environment. The Consultant shall recommend Sustainable Design options and provide analysis, design modeling and reports as directed by the Authority

(2) Investigate ways to re-use storm water runoff and use of gray water

e. Operations and Maintenance

(1) Analyze and recommend building management control systems including systems for commissioning and certification

(2) Prepare LEED Certification Checklist with required documentation materials, including LEED application and tracking of progress throughout design and construction

(3) Prepare cost/benefit analysis and life cycle cost analysis of certain elements and systems proposed for implementation.

7. Geotechnical

a. Presentation of subsurface conditions

b. Compilation of engineering properties

c. Geotechnical design criteria

d. Geotechnical staging plans

e. Instrumentation and monitoring requirements

8. Structural

a. Basic structural system and dimensions.

b. Final structural design criteria

c. Foundation design criteria

d. Preliminary sizing of major structural components

e. Drawings indicating staging of the construction, coordinated with the cost estimate.

f. Staging drawings shall clearly indicate the assumed progress of construction, as well as necessary outages and service interruptions of transportation facilities, site operations, and local utilities.

g. Critical coordination clearances

h. Foundation Plan

i. Foundation and Basement Wall Sections and Details

j. Typical Below-Grade Plan

k. Ground Level Plan

l. Typical Floor Plans

m. Roof Plan

n. Preliminary Column and Beam Schedules

o. Typical and Special Details

p. Typical and Special Sections

q. Preliminary framing layouts for new openings, new elements or repairs, showing main member sizes, roof loads, floor loads, wind loads, soil bearing capacity, pile capacity and plans; grades of structural steel; strength of concrete, slab thickness r. Preliminary design for all repairs, and enhancements to structure or joints

9. Civil

a. Drawings shall depict at a minimum the following information:

(1) Base drawings shall include but not be limited to existing surface features, topography, utility information, underground building structures, tunnels and subways based on given Horizontal and Vertical Control Datums and in accordance with latest Authority CAD standards.

(2) All utility conflicts/impacts and subsequent design modification/relocation of such, including, but not limited to, storm, sanitary, sub drainage, gas, water, river water intakes, electrical, telephone, and fiber optics.

(3) Locations of tie ins and accommodation for future utility work.

(4) Bypass and/or staging plans of utility relocations so as not to disrupt utility service.

(5) Staging plans and sequence of construction to minimize disruption to West, Vesey, Church and Liberty Streets vehicular and pedestrian traffic as, well as, other adjacent streets.

(6) General site work including, grading, drainage, roadway and sidewalk paving, bus parking and entry & egress ramps.

(7) Study methodologies for underpinning the IRT 1/9 and study impacts on subway operations.

b. In addition, Consultant shall:

(1) Coordinate utility modifications/relocations with appropriate New York City & New York State Agencies, (i.e. NYSDOT, NYCDOT, NYCDEP, NYCT) and private Utility Companies/Owners (i.e. Consolidated Edison, Verizon, Keyspan) (2) Prepare applications and associated drawings, sketches and calculations required for such on behalf of the Authority for applicable permits from New York City and New York State Agencies.

10. Traffic:

a. Design documents of proposed pedestrian facilities including the sizing and capacity analyses

b. Design plans for Terminal Entry Building vertical circulation and wayfinding elements

c. Design plans showing security applications for high pedestrian volume areas including perimeter barriers, access control and patron check alcove.

d. Design plans showing maintenance and protection of traffic schemes with street and sidewalk closures, detours, diversions and special devices illustrated.

11. Mechanical/Electrical/Plumbing

a. General Components

(1) Systems process and instrument diagrams

(2) Service capacities and connected load calculations

(3) Fire safety assessments, hydraulic calculations for sprinkler and dry gas systems

(4) Typical floor plans and sections

(5) Major equipment room layouts, elevations and details

(6) One-line diagrams

(7) Control and block diagrams

(8) Riser diagrams

(9) Calculations, equipment sizing, efficiencies and selections

(10) Equipment schedules

(11) Electrical closets and cables management system

(12) Heating, Cooling, Ventilation and Energy Load consumption calculations

(13) System failure analysis and service and equipment back-ups for life safety and mission-critical functions

(14) Redundancy

(15) Power, water, heating and cooling requirements and systems

(16) Major distribution routes

(17) Phasing and installation sequences

(18) Measurement and verification provisions

(19) Metering system

(20) Grounding

(21) Provide electrical engineering design for electrical/electronics and related trades required to support the entire project, including normal and emergency power, grounding, normal and emergency lighting, exit lighting and signs, and fire alarm system

b. For each MEP service provide schematic one line diagrammatic flow riser distribution diagram(s) from the point of connection.

(1) Refrigeration Plant

(2) River Water Plant Rehabilitation

(3) Heating Plant

(4) River Water Distribution

(5) Chilled Water Distribution

(6) Hot Water Distribution

(7) Pumping systems

(8) Air Plants (Fans)

(9) HVAC Fit Out for all spaces

(10) Smoke Purge System

(11) HVAC for electric spaces and elevator machine rooms

(12) Smoke Control / Emergency Ventilation Systems

(13) Fuel oil

(14) Compressed Air

(15) Gas

(16) Power distribution system

(17) Emergency generators plant(s)

(18) UPS system(s)

(19) Fire Alarm system

(20) Normal and emergency lighting

c. HVAC plans shall depict at a minimum:

(1) Incoming steam, water, river water services and distribution

(2) Major equipment, such as chillers, fans, pumps, compressors, fan-coil units, heating and cooling coils, heat exchangers, cooling tower, etc., sizes and locations

(3) Summer and winter outdoor/indoor design conditions

(4) Process and instrument diagrams along with distribution systems shown diagrammatically with appropriate sizes, and energy efficiency considerations

(5) Typical Below-Grade Plans

(6) Typical Floor Plans

(7) Major Equipment Room Plans

(8) Exhaust and Intake Penetration Locations

(9) Riser Diagrams

(10) System Schematic Diagrams

(11) Major Equipment Schedules

(12) Ventilation rates and energy use considerations

(13) Measurements, verifications and systems balancing diagrams

(14) Controls System Architecture for all systems

(15) Determine technology and procurement approach for a multi use facility built in phases.

(16) Riser Diagrams

(17) System Schematic Diagrams

(18) Major Equipment Schedules

(19) Ventilation rates and energy use considerations

(20) Measurements, verifications and systems balancing diagrams

d. Smoke Management

Prepare Computational Fluid Dynamics (CFD) and egress analysis models to determine technical approach and sizing of smoke control and emergency ventilation systems to be implemented for all major spaces (i.e., PATH Terminal Building and atriums). Prepare complete smoke control and emergency ventilation control sequence for all scenarios.

e. Plumbing Drawings depicting at a minimum:

(1) Incoming water, fire water, storm and sewer services

(2) Major equipment, such as tanks, pumps, heat exchangers, pressure regulating valves, etc., sizes and locations

(3) Process and instrument diagrams

(4) Piping layouts with major sizes shown

(5) Fixture locations

(6) Roof and roof drain locations

(7) Major equipment locations

(8) Layout of special systems including fire protection systems

(9) Redundancy provisions

(10) Typical Below-Grade Plans

(11) Typical Floor Plans

(12) Major Equipment Room Plans

(13) Riser Diagrams

(14) System Schematic Diagrams

(15) Major Equipment sizing calculations and schedules

(16) Measurements and verifications systems

f. Electrical Drawings and Fire Alarm Drawings depicting at a minimum:

(1) Major equipment, such as electrical vaults, switchgear, distribution panels, lighting panels, motors, MCC generators, UPS systems, battery systems, communication, control and security equipment, etc., including sizes, types and locations, etc.

(2) sizes and locations.

(3) Incoming services and distribution

(4) Electrical one-line diagrams

(5) Riser Diagrams

(6) Block Diagrams

(7) Control Diagrams

(8) Equipment locations, elevations and details as necessary.

(9) Plans for exterior building lighting

(10) Substations and communication rooms locations

(11) Transformer vaults and switchgear protection

(12) Metering System

(13) Grounding

(14) Energy conservation considerations

(15) Typical Below-Grade Plans

(16) Typical Floor Plans

(17) Power control and communication cables management plans, schedules and routes

(18) Receptacle and exit lighting layout

(19) Fire Alarm system layout, description and notes

(20) Major Equipment Room Plans

(21) SCADA system

(22) Back-up generators, transfer switches and distribution

(23) Power conditioning equipment, UPS and batter systems sizing and distribution

(24) Major Equipment Schedules and list of approved manufacturers

g. All MEP documents shall include but not limited to the following:

(1) Load studies and other necessary calculations.

(2) Recommended lighting levels

(3) One line diagrams for layouts (equipment, grounding, wiring/conduit)

(4) Fire Alarm risers including system description, layouts

(5) Lighting calculations, layouts

(6) Emergency power and lighting systems

(7) Exit lighting and signs.

(8) Layout and dimension of electrical and cable duct banks (power, telephone, communication and data)

(9) Conduit routing and necessary installation details

(10) Size and locations of electrical, communication and telephone rooms and closets

(11) Future and spare capacities

(12) All necessary elevations, views and details

h. Fire Protection

(1) Incoming fire water service and interconnection to domestic water service

(2) Process and instrument diagrams

(3) Fire water and sprinkler systems hydraulic calculations

(4) Typical Below-Grade Plans

(5) Typical Floor Plans

(6) Major Equipment Room Plans

(7) Riser Diagrams

(8) System Schematic Diagrams

(9) Major Equipment Schedules

(10) Typical Floor Sprinkler Layout Plan(s)

(11) Testing, measurement and verification systems

i. Communications

(1) Identify and design communications systems
• Telephone and wireless systems

• Public address systems

• CCTV system and access control systems

• Public Address System

• Electronic Signage systems

• Primary and Secondary Command and Control Centers

(2) Provide 1-line distribution diagrams from point of connection for all systems

(3) Provide documents indicating locations and sizes of communication closets, equipment rooms, and cable management system

(4) Provide major equipment room plans

(5) Provide Building Management System communication systems riser and block diagrams, layouts and specifications

(6) Provide Security systems riser and block diagrams, layouts and specifications

(7) Provide coordination with Fare Control system

j. Vertical Transportation and Conveyance Systems

Provide plans, sections and outline specifications, and model data for all vertical transportation systems including but not limited to passenger and freight elevators, escalators, and moving walkways.

k. Security

Note: Due to the sensitive nature of this particular analysis, documents produced including all back-up calculations, data, and other materials may be subject to confidentiality restrictions and produced as separate packages.

(1) During the Preliminary Engineering phase, the Consultant shall prepare security design standards and specifications as directed by the Authority, for all security-related building components as previously mentioned, based upon criteria to be approved by the Authority.

(2) The project standards shall be included in the Preliminary Engineering phase and fully integrated into the project design and coordinated with the work of project.

(3) Prepare a computer model for airflow for the entire complex to be used as an evacuation aid during fire, biological, or chemical threat evacuations. A detailed airflow model should study likely air intake paths and contamination risks and determine the combination of dampers/air intake isolations, that could lower the risk and the recommend paths for evacuation.

(4) Perform further blast analysis for specific areas, threats, or design alternatives. or other nearby targets, and to provide recommendation on the best way to provide blast mitigation for these buildings.

(5) Determine the inherent resistance of representative components of existing or proposed curtain wall assemblies, other exterior building envelope elements, or structures to ascertain if they are strong enough to withstand the predicted blast loads and what mitigating measures should be taken

(6) Deliverables:

• Design Standards Report including text, graphics and drawings for typical applications, with each design standard and specification explained and summarized, and exceptions or alternatives noted.

• Review and confirm proposed integration policy for security equipment and systems and building information and communication systems. Based on approved Scope Confirmation Report, incorporate revised integration policy into all design work and guidelines.

• Security Options: include Design Services and consultations with the host government, and representatives of the City and State of New York to identify options to further enhance security

• Prepare a computer model for airflow for the entire complex to be used as an evacuation aid during fire, chemical, or biological threat evacuations.

• Blast Analysis Report including a table of contents, an executive summary of findings and recommendations for blast mitigation. Photographs, drawings, charts and sketches shall be included as required. Report shall also include calculations of representative blast loadings on all buildings.

l. Outline Specifications

Provide a listing of all specification sections intended for the project, items requiring long lead-time, mock-up testing and materials that may be sole sourced.

m. Construction Estimates and Schedules

(1) Prepare a Construction Cost Estimate(s) based on Preliminary Engineering documents, which would include a design contingency of up to 15%.

(2) Estimates shall be prepared at program milestones indicated in Section V. At a minimum, estimates shall be prepared at 50% and 100% level of the completion of the Preliminary Engineering documents (equivalent to 15% and 30% of the total design completion).

(3) Provide estimates of time and schedules required to complete construction, as well as estimates of delivery times for all long lead-time items. Present the Construction Schedule in bar chart form using days, weeks or months as appropriate for the unit of time. Schedules shall be provided at 50% and 100% level of completion of the Preliminary Engineering documents (equivalent to 15% and 30% of the total design completion).

n. Other Miscellaneous Work

(1) At the end of Preliminary Engineering phase, the Consultant shall provide final Preliminary Engineering Documents that shall include but may not be limited to drawings, outline specifications, three-dimensional sketches, 3D CADD renderings, sample boards with proposed materials, models, animations, calculations, reports, cost estimates, and construction schedules.

(2) Ongoing Design Reviews. The Consultant shall participate in ongoing design reviews with the Authority and other public and private entities. This is also expected to include Consultant's participation in periodic value planning, value engineering, and project risk assessment evaluations.

(3) Environmental Process Support. The Consultant shall be required to perform its work in accordance with the public environmental review (NEPA) process for the WTC PATH Terminal project. Specific work including presentation materials and analyses will be requested by the Authority to support the environmental process.

(4) Constructability Review: The project will be implemented in conjunction other WTC site development as well as PATH operations. The Consultant must perform constructability analyses of construction within this operating transit environment and make recommendations pertaining to construction feasibility on integrating transit operational requirements, regulator requirements, availability of specialized equipment (including work trains), available areas and available transit system down time. The Consultant must prepare construction phased program schedules that identify critical paths of individual projects and entire programs, sequence construction contracts and staging, and consider long lead materials and equipment.

(5) Project Implementation Strategy: The Consultant shall evaluate and recommend design and construction sequencing and contract packaging options to allow for fast-tracking of Final Design and construction to meet target schedule milestones outlined in Section VI.

(6) Related to other components of the WTC PATH Terminal project, the Consultant will be requested to provide certain expert professional services to support the Port Authority and Engineering Department in-house design staff in their assigned components of design work, including but not limited to, the following:

•Architectural lighting

•Computer rendering and animation

•Architectural model maker

•CAD Drafting

•Graphics

•Security

•Sustainable design

•Cost Estimating

•Acoustical

•Building envelope consultant

•Retail consultant

•Code consultant

•Landscape Architect

•Vertical Transportation Consultant

TASK E. FINAL DESIGN AND CONTRACT DOCUMENTS

The Consultant shall not proceed with performance of this task unless expressly authorized in writing by the Authority to do so.

The following items should be included, but are not limited to, the Final Design Package for each discipline.

1. General Requirements

When the services of the Consultant include the preparation of a Final Design, which includes preparation of contract documents the Consultant, shall conform with the following requirements:

a. Prior to the performance of this task the Consultant shall submit a specific Quality Control/Quality Assurance Program for the professional services to be performed in connection with the Final Design Phase and the preparation of Contract Drawings and Specifications specified herein.

b. Upon completion of the Contract Documents required hereunder, the Consultant shall submit a letter to the Engineer certifying that the Consultant has performed the Quality Control/Quality Assurance Program as defined by the Consultant at the start of this Task.

c. Contract Drawings: Prepare a final design and Contract Drawings for work to be performed by a Contractor based on the approved Preliminary Design which shall include, but not be limited to, the appropriate work items contained in the foregoing tasks. For contract drawings, observe the following signature procedures:

(1) All Consultant Contracts shall have a cover sheet containing the facility name, contract title and contract number. The cover sheet shall have the appropriate places for signature by Authority staff. No other information shall appear on the cover sheet. This will be the only Contract Drawing prepared by the Consultant that will be signed by Authority staff.

(2) Sign and seal all drawings prepared by the Consultant

(3) Subconsultants shall sign and seal their own drawings. The Consultant's logo shall appear on each drawing prepared by a subconsultant.

(4) All drawings prepared for New York contracts shall be signed and sealed by a Principal of the firm with a New York Professional Engineer or New York Registered Architect License.

d. Design Calculations and Diagrams: The Consultant shall submit complete design computations and design drawings covering all structural framing and supports, such as primary framing members, bracing, foundations, siding, girts, roofing and architectural finishes. The Consultant shall also submit calculations necessary to support MEP design.

(1) Calculations shall clearly distinguish between new and existing construction. Documents from which existing dimensions and existing member properties were obtained shall be referenced in the calculations.

(2) All engineering calculation sheets shall be numbered, dated, and indexed. The index sheets shall define the total number of the sheets submitted and shall bear the seal and signature of an experienced engineer holding a Professional Engineer's license in either the State of New York and who is familiar with and responsible for the design.

(3) If computations are submitted in computer print-out form, furnish the following. Description and proof of adequacy of the program. The description of each program shall include:

• The type of problems solved by the program.

• The nature and extent of the analysis.

• The assumptions made in the program.

• Instructions for interpreting the computer output format.

(4) Indicate the design criteria used and the diagrams showing the loading conditions and loading combinations.

(5) The design constants and equations used, including all references.

(6) Submit indexed and clearly identified input and output sheets for the entire structure or for those portions of the structure, which will be sufficient to enable the Authority to evaluate the structure.

(7) Submit a clear diagram of all member forces (axial, shear, bending or other forces, as appropriate) for each loading condition controlling the design.

e. The Final Design documents shall be formally submitted for Port Authority review at 60%, 90%, and 100% of the total design completion.

f. Construction Documents Deliverables

(1) Technical bid documents for all disciplines, including Drawings, and specifications. Documents are to be complete, clear, fully coordinated between disciplines, and accurate, describing in detail all of the work, to include all schedules, details, plans, dimensions and diagrams necessary for full understanding, accurate bidding and construction of the work.

(2) Provide complete Construction Documents corresponding to individual construction bid packages, as directed by the Authority. The Professional Firm shall provide the Authority with a complete set of reproducible drawings and documents as well as electronic files conforming to the project Standards.

(3) Major equipment not in scope (for clearances, space requirements, power requirements, etc.) should be depicted for coordination purposes.

(4) All demolition and removals shall be indicated as part of the contract documents.

(5) Site Utilities / Infrastructure:

• Detailed plans of all site water supply systems including but not limited to final layout of all site water supply and distribution, back flow prevention electrical power, storm and sanitary systems including existing and proposed utility locations and intended storm and wastewater disposal points.

• Detailed plans of all, water meters, pumps, hydrants, etc.

• Types and distribution diagrams and locations of all underground utilities (including capacity and condition of existing utilities) and a statement of adequacy of same. Types and locations of all underground utilities (including capacity and condition of existing utilities) and a statement of adequacy of same.

• Combined site and/or utility plans shall also show all roof grading and drainage, proposed levels and elevations, existing and proposed surface treatments. Utility plans shall include all other work necessary to fully define the intended design including final functional and relocation programming with existing conditions.

• Final site electrical power distribution plans including vaults, manholes, pull boxes, etc. with typical details and sections.

• Final storm and sanitary distribution plans and details including finalized existing and proposed utility locations and intended storm and wastewater disposal points.

(6) Architectural

• Finalized detailed building plans for every level (including roof plans), indicating design details and locations of all elements, including:
- partition schedules and details

- All telecommunications, audio/visual, power and data, lighting, and security systems

- Finalized door and finish schedules, including hardware plans and schedules

- Large Scale Floor Plans indicating:

- Vertical Circulation and Conveyance packages

- Fare Control Area

- Special Operational Spaces

- Street Entries

- Public Spaces

- Building Section(s)

- Exterior Wall Detail

- Large Scale Interior Elevations

- Finish materials

- Detailed final color and materials palettes for all interior and exterior materials

- Finish specifications and samples.

- Color elevations or other representations of significant spaces

- Color and material boards for furniture selections

- Final layout and schedules of all equipment and furniture

(7) Landscape (Interior)

• Final site plan(s), sections and elevations including landscape and hardscape components, planting details and irrigation systems.

• Final specifications for planting and maintenance agreements.

• Catalogue cuts and final details for furniture and other accessories located within the public areas

(8) Graphics/Wayfinding/Signage

Provide all necessary details of signage elements including but not limited to sign boxes, illumination details, support structures, signage schedules and location plans for all public spaces within buildings and above grade for the program.

(9) Sustainability Design Components

(10) As part of the Construction Document phase, the Consultant shall develop for review and approval by the Authority for all projects the following: Develop standards for commissioning procedures and requirements. Standards shall include requirements for systems testing and commissioning in accordance with recommendations of ASHRAE, IEEE, NFPA, US Green Building Council and the WTC Sustainable Guidelines to ensure that the instruments and controls are properly calibrated, water and air flows are properly balanced and systems respond properly to controls for optimum operation.

(11) As part of the Post Award Services, the Consultant shall coordinate with and participate in commissioning, testing, balancing and quality assessment prior to turnover and acceptance of each system for every project. The firms for commissioning, testing and balancing support will be selected in cooperation with the Authority.

(12) Verify that final systems selected provide a life cycle cost/benefit

(13) Indicate operations and maintenance requirements of all systems specified

(14) Geotechnical

• Final Geotechnical design criteria

• Geotechnical report

• Geotechnical specifications and drawings

• Geotechnical staging drawings

• Instrumentation and monitoring specifications and drawings

(15)Structural:

• Roof loads, floor loads, wind loads, earthquake zone, soil bearing capacity, grades of structural steel; strength of concrete, slab thick nesses, special mix design and placement considerations.

• Temporary shoring requirements of in place construction shall be indicated

• All alterations to existing and new structural systems and dimensions

• Drawings indicating the assumed staging of the construction. Structural staging drawings should clearly indicate the assumed progress of construction, as well as applicable notes and sequences to ensure all work is performed in accordance with minimal agreed upon outages and service interruptions.

• Final sizing of major structural components

• Critical coordination clearances

• Below-Grade Plans

• Final Column and Beam Schedules and details

• Final framing layouts for new opening, new elements or repairs, showing main member sizes, roof loads, floor loads, wind loads, soil bearing capacity, pile capacity and plans; grades of structural steel; strength of concrete, slab thick nesses, etc.

• Final design and details for all repairs, and enhancements to structure or joints

(16) Civil

• Alignment plan(s) showing horizontal and vertical alignments curve data tables, existing and proposed roadway, track work and ramp profiles where required

• Removal plan(s) showing the removal or abandonment of existing roadways and utilities and all appurtenances.

• Plan and design for underpinning the NYCT 1/9 subway

• Utility plan showing the layout and data table providing the coordinates (station and offset) of the manholes and catch basins, pipe sizes, inverts, materials, valves

• Profiles for water main and sanitary/combined utility installation.

• Provide locations and details of all underground existing utilities requiring supporting, relocation or exercising care during construction within the area (underneath and east of the NYCT 1/9 subway)

• Detail sheets showing details of pavement sections, curbs, sidewalks, drainage, water & sanitary systems, pipe bedding, manholes, catch basins

(17) Traffic:

Re-run computer flow model to verify level of service and egress

(18) Mechanical/Electrical/Plumbing:

General Components:

• Service capacities and connected load calculation

• Detailed plans of major equipment sizes and locations

• Detailed floor and reflected ceiling plans

• Major equipment room layouts, sections and detail

• Details of system and riser diagrams

• Equipment schedules, indicating final selections and all relevant energy conservation measures.

• Energy consumption calculations

• HVAC fit out for all spaces

• Smoke Management System

• Controls

• Determine technology and procurement approach for controls for multi-use facility built in stages.

•System diagrams for each system

•Process and Instrumentation Diagrams for each system

•System architecture drawings

•Control and monitoring point matrices for each system

•Audit controls testing and commissioning

•Narrative sequence of operations for each system.- 30 -

•Meetings with utility and regulatory companies upon request.

•Energy consumption calculations

•System failure analysis and service and equipment back-ups for life safety and mission-critical functions

•Redundancy

•HVAC fit out for all spaces

Plumbing:

• Detailed core / toilet plans

• Layout of all major mechanical spaces,

• Location and layout of special systems and major equipment, such as tanks, pumps, heat exchangers, pressure regulating valves, etc., sizes and locations

• Piping layouts with all sizes shown

• Details of systems and riser diagrams

• Detailed final System Diagrams

• Electrical/Electronics and Fire Alarm and Communications

• Finalized detailed site and building plans including light, power, control, communication, signal, life safety and special systems

• System details block and riser diagrams

Electrical/Electronics equipment and light fixture types

• Schedules and details and all relevant energy conservation measures.

• Final layout of all major electrical equipment and spaces, such as electrical vaults, closets, switchgear, distribution panels, lighting panels, motors, generators, UPS systems, battery systems, etc., sizes and locations

• Site plans for exterior lighting

• Normal, emergency and exit lighting

• Normal and emergency power

• Below-Grade Plans

• Floor Plans

• Cables management plans and routes

• Major Equipment Room Plans and details including fire alarm system devices, risers, command centers and interconnection to HVAC, elevator recall and other life safety systems

• Load, voltage drop, short circuit, lighting, battery size and other necessary calculations.

• CCTV and Access Control Diagrams

• Coordinate with Fare Control System

Fire Protection

• Detailed plans of all fire protection systems, control panels, etc

• All Below-Grade Plans

• All Floor Plans

• Final detailed System Diagrams

• All Sprinkler Layout Plan(s)

• Testing, measurement and verification systems

Vertical Transportation and Conveyance Systems

• Provide plans, sections, machine room details and specifications for all elements of vertical transportation (escalators, freight elevators, passenger elevators and moving walkways). For the elevators, provide pit and overhead details.

(19)Security

• Consultant shall implement the design of security components based on approved criteria and standards. All security systems and equipment will be designed by a professional Security firm (while the partitions, finishes, structure, HVAC, electrical work, will be included in the work of the MEP Firm)

• Consultant shall participate in Contract Document preparation and prepare specifications and other documentation as required for the project security requirements.

• Prepare security specifications for all security-related building components included in individual projects, such as required ballistic ratings, required adjustments to receive security devices, required characteristics and details, required lighting levels, configuration, dimensions and characteristics for Secondary Security Control Center

(20)Specifications and Construction Staging Drawings

• Provide recommended construction phasing and staging plan for all the project components

• Prepare Contract Specifications to include:

- Division 1 - Provide the following information for the Authority Standard Division 1 Specifications which will be prepared by Authority staff:
> Information specifically related to Conditions and Precautions, Staging, Available Property, Temporary Structures, and other General Provision Requirements of the subject contract.

> A list of the Contract Drawings.

> A list of unit price items, where appropriate, with description and estimated quantities for each item.

(21)Technical Specifications

• The Authority has prepared certain standard technical specifications, which will be made available in hard copy and/or on CD as requested by the Consultant. These standard technical specifications must be used by the Consultant and may not be altered or revised in any way by the Consultant. Since these standard Technical Specifications may contain materials and related procedures, which are not appropriate to the specific Contract being proposed, the contract drawings must clearly define the materials and scope of work. Division 1 of the Authority's specifications dealing with general provisions, includes the following language:
"In case of a conflict between a requirement of the Contract Drawings and a requirement in Division 1 of the Specifications, the requirement of Division 1 shall control. In case of a conflict between a requirement contained in other Divisions of the Specifications and a requirement of the Contract Drawings, the requirement of the Contract Drawings shall control."

• The Consultant shall prepare any technical specifications, which are not available from the Authority. Any technical specifications prepared by the Consultant shall be in the same format as the Authority standard technical specifications and the Consultant shall make any changes therein requested by the Authority throughout its various reviews.

• The Consultant shall comply with the "Instructions to Consultants for Preparation of Port Authority Construction Contract Documents" which will be made available upon commencement of work by the Consultant.

• Other than hard copies of specifications prepared by the Consultant that are to be submitted to the Authority as noted herein, the Consultant shall submit compact disk copies of said specifications. One disk copy shall contain the specifications in the format of the original word processing program used by the Consultant, and shall labeled to clearly indicate the contract title, the name of the word processing program used and the revision number of said program. Another disk copy of the software program shall be submitted in ASCII format.

(22) Construction Estimate and Construction Schedule

• Prepare a Construction Cost Estimate(s) based on the final Contract Drawings and Specifications and in accordance with the Authority's "Construction Estimating Guide" (a copy of which is available from the Project Manager).

• Estimates shall be prepared at program milestones indicated in Section V. At a minimum, estimates shall be prepared for the Final Design phase for all program components at a minimum of 60%, 90% and 100% of total design completion.

• Provide estimates of the time and schedule required to complete construction, as well as estimates of delivery times for all long lead-time items. Present the Construction Schedule in bar chart form using days, weeks or months as appropriate for the unit of time, at the 60%, 90%, and 100% of the total design completion.

(23)Miscellaneous

• At the end of Final Design and Contract Documents phase, the Consultant shall provide final documents that shall include but may not be limited to drawings, contract specifications, three-dimensional sketches, 3D CADD renderings, sample boards with proposed materials, models, animations, calculations, reports, cost estimates, and construction schedules.

• Ongoing Design Reviews. The Consultant shall participate in ongoing design reviews with the Authority and other public and private entities. This is also expected to include Consultant's participation in periodic value planning, value engineering, and project risk assessment evaluations.

• Participate in an on-going review of the various design documents, specifications, cost estimates, schedules, etc. so as to incorporate the various project wide design, engineering, and other project controls established by the Authority. This may include but not be limited to project-wide design controls, project-wide engineering criteria, urban design guidelines, signage master planning, lighting system design, standard detailing, environmental and regulatory requirements, master project scheduling, value engineering, graphic and/or electronic drawing standards, master specification formatting, correspondence and document control.

• Environmental Process Support. The Consultant shall be required to perform its work in accordance with the public environmental review (NEPA) process for the WTC PATH Terminal project. Specific work including presentation materials and analyses will be requested by the Authority to support the environmental process.

• Consult with the Authority to establish structure of Construction Document Submittal and bid documents, in terms of scope and number of construction contracts and timing of each bid, Construction Phase policies or procedures.

• Constructability Review. The project will be implemented in conjunction other WTC site development as well as PATH operations. The Consultant must perform constructability analyses of construction within this operating transit environment and make recommendations pertaining to construction feasibility on integrating transit operational requirements, regulator requirements, availability of specialized equipment (including work trains), available areas and available transit system down time. The Consultant must prepare construction phased program schedules that identify critical paths of individual projects and entire programs, sequence construction contracts and staging, and consider long lead materials and equipment.

• Related to other components of the WTC PATH Terminal project, the Consultant will be requested to provide certain expert professional services to support the Port Authority and Engineering Department in-house design staff in their assigned components of design work including, but not limited to, the following:

- Architectural lighting

- Computer rendering and animation

- Architectural model maker

- CAD Drafting

- Graphics

- Security

- Sustainable design

- Cost Estimating

- Acoustical

- Building envelope consultant

- Retail consultant

- Code consultant

- Landscape Architect

- Vertical Circulation

TASK F. SERVICES DURING THE CONSTRUCTION PHASE (TASK ORDER)

Authority Stage IV Construction

The Consultant shall not proceed with any work on this Task without express written consent of the Port Authority's Project Manager.

(1) Submit your specific Quality Control/Quality Assurance Program for the professional services to be performed in connection with the performance of your Post Award Duties specified hereunder.

(2) Review, and approve or disapprove all working drawings, catalog cuts and samples for conformance with the Specifications and Contract Drawings within 10 working days after receipt of said articles from the Contractor, for those articles for which the Consultant is the Engineer-of-Record. Indicate any corrections and additions as required. Advise the Authority thereof giving the reasons for your decisions. Make all required distributions through final approval. Six copies of each working drawing will be required.

(3) In addition to any on-site observations the Consultant may require as the Engineer-of-Record, attend, at the request of the Authority, two pre-construction meetings and one field meeting for each month of the construction period.

(4) Prepare and submit, at the first pre-construction meeting, an outline list of required contractor's submittals to include but not be limited to, working drawings, catalog cuts,    samples, certificates and test reports.

(5) Upon completion of construction, modify the Contract Drawings to "as-built" conditions and certify the same. The Authority will furnish the "as-built" information to be verified and incorporated.

(6) Evaluate alternative construction details and materials, as requested by the Authority.

(7) Make post-award contract changes with detailed estimates and make site inspections as required for the changes.

(8) Maintaining clear, dated records of all pertinent documents including but not limited to transmittals, submittals, and responses, RFI’s and responses, meeting minutes, shop drawing mark-ups; designs, calculations or drawings prepared during the construction phase. These documents shall be made readily available to the Authority upon request. Upon project completion or at the request of the Authority, all of these documents shall be listed, filed, and submitted to the Authority for their files.

(9) Compensation for the evaluations and changes referred to in paragraphs 6 and 7 above shall be computed in accordance with the paragraphs of the Agreement relating to  compensation and shall not be charged against the estimated cost, provided that none of these items result from non-compensable work.

(10) Commissioning Services for all projects:

• Develop standards for commissioning procedures and requirements, integrated into Design Standards. Include requirements for systems testing and commissioning in accordance with recommendations of ASHRAE, IEEE, NFPA and US Green Building Council to ensure that the instruments and controls are properly calibrated, water and air flows are properly balanced and systems respond properly to controls for optimum operation.

• Coordinate with and participate in commissioning, testing, balancing and quality assessment prior to turnover and acceptance of each system for every Project. The firms for commissioning, testing and balancing support will be selected in cooperation with the Authority. During the Post Award phase, the Consultant shall prepare maintenance, testing, installation, instruction manual(s) or any other written or graphic material as directed by the Authority for the installation, use, maintenance and operation of the security program.

TASK G. WTC SITE DEVELOPMENT COMPONENTS (TASK ORDER SERVICES)

There are site development and infrastructure components, particularly on the eastern portion of the WTC site that may be incorporated as coordinating elements with the WTC PATH Terminal, including potential lower level structural slabs, new slurry walls, and associated demolition, excavation, and foundations. The Authority will determine whether any such work would become part of the WTC PATH Terminal project, in conjunction with the progress of other WTC site development. Any such work if authorized, would be performed as an additional task.

V. SCHEDULE AND SUBMISSIONS

A. Anticipated Program Schedule

The following project design durations are expected on the Consultant's Tasks as described herein:

1. Basis of Design Report - completed within 3 months after authorization to proceed by the Authority

2. Preliminary Engineering Documents - completed within 9 months after authorization to proceed by the Authority (may be concurrent with the Basis of Design Report).

3. Final Design and Contract Documents - completed within 12 months after authorization to proceed by the Authority. Discrete project components may be authorized for Final Design at different times.

These durations are meant as general timeframes, and may be impacted by progress of other WTC Site redevelopment work, as well as the public environmental review (NEPA) process. The Authority currently anticipates the start of construction for the Permanent WTC PATH Terminal in late 2004 or early 2005. Completion of the certain portions of the project are targeted by the end of 2006, with other components by late 2009.

B. Quality Control/Quality Assurance

1. Submit your specific Quality Control/Quality Assurance Program for the professional services to be performed in connection with the final design and the preparation of Contract Drawings and Specifications specified herein.

2. Submit a letter to the Engineer certifying your compliance with the Quality Control/Quality Assurance Program established by the Consultant for the preparation of Contract Documents as required herein, along with one set of original mylar tracings of the complete Contract Drawings, reproducible masters of the Technical Specifications and a final construction cost estimate.

3. Submit your specific Quality Control/Quality Assurance Program for the professional services to be performed in connection with the performance of your Post Award Duties specified hereunder.

4. The completed Contract Drawings and Technical Specifications submitted above will be reviewed by the Port Authority's Law Department. The Consultant shall make any changes to the Contract Drawings and Technical Specifications resulting from this legal review and submit the revised Contract Drawings and Technical Specifications, which will be used for bidding purposes.

VI. ADDITIONAL INFORMATION FOR PREPARATION OF DESIGN DOCUMENTS AND CONSTRUCTION COST ESTIMATES

Except as otherwise noted herein, the Preparation of Preliminary Engineering and Final Design (Contract Documents) shall conform to Port Authority standards, and codes which would be applicable if the Authority were a private corporation. In case of a conflict, the more stringent requirement shall apply.

A. General Requirements

1. Prepare all Contract Drawings on standard size Port Authority mylar tracings to be furnished by the Authority. Contract Drawings may be reduced to one-half size prints before distribution to contractors for bidding. Tracings shall, therefore, be prepared in such manner as to produce clearly legible drawings after reduction. Scales shall be graphical rather than numerical, and include a metric conversion scale.

2. Meet with the Authority and incorporate Port Authority comments after submittals.

3. The following additional services shall be provided as part of this Agreement:

4. Answer questions asked of the Authority staff by bidders during the bid period.

5. Prepare Contract addenda including Contract Drawing revisions and engineering calculations, as necessary or as requested by the Chief Engineer, for Port Authority approval and issuance by the Port Authority. Furnish originals for final printing.

6. Conform Technical Specifications and Contract Drawings to addenda when directed by the Chief Engineer after award of the Contract.

7. Upon request, assist Port Authority staff in performance of tasks below:

a. Prepare Information for Bidders, Form of Contract, Division 1 of the Specifications and the Analysis of Bid and Contract Progress Schedule.

b. Meet with Consultant from time to time to review all Specifications, Contract Drawings, construction cost estimates and schedules prepared.

c. Review with, and transmit comments from, various Port Authority Departments to the Consultant for incorporation by him into the Contract Documents.

d. Review addenda with and obtain approval of various Port Authority Departments.

e. Solicit, receive, open bids, and award Contract or reject bids.

8. Document Management Standards

a. The Consultant shall maintain clear, dated records of all pertinent documents including but not limited to transmittals, submittals and responses, Consultant or Port Authority requests and responses, meeting journals and minutes, drawings, original marked shop drawings; engineering design, calculation and drawings prepared during each project stage. These documents shall be made readily available for review by the Engineer upon request. Upon the completion of each project stage, or at the request of the Authority, all these documents shall be listed, filed and submitted to the Authority.

b. Submit proposed paper and electronic formats of all deliverables for Authority approval prior to first or draft submittal; include this process on the appropriate schedule. In every instance when information can be communicated in several ways, propose the clearest and least complex method: outlines are preferred over text, matrices are preferred over narrative, complete diagrams are preferred over incomplete detailed drawings, and sketches and photographic images are preferred over complex rendered images.

c. Utilize Port Authority drawing and CADD standards.

d. Develop an internal document control and version control system for documents.

e. Consult with the Authority and fully coordinate electronic strategy, so that all deliverables are accessible, and the drawings, specifications, schedules and estimates become the basis for computer aided facilities management of the buildings as each construction phase is completed. Review anticipated Port Authority electronic strategy, and utilize approved hardware and software. The systems presently anticipated are:

• Primavera Project Planner (P3) construction scheduling and construction management

• Microsoft Excel 2000: budgeting, cost monitoring, tables, and charts

• Microsoft Word 2000: word processing

• Microsoft PowerPoint: graphics and presentations

• Microsoft Project 2000: design schedules

• Prolog Manager 6: construction document management.

• Prolog Website: web browser interface for construction document management

•Authority CADD Standards

- Submit all documents to the Authority in both hard copy and electronic version simultaneously, three hard copies and a CD ROM.

- All Reports will be submitted in 8 ½ ” by 11” black and white format.

- All Graphics will be submitted in 8 ½ “ by 11” color format

- All Drawings will be submitted in either 11” x 17” or 36” x 60”. Half-size sets will also be used.

- Follow Approved Quality Control Plan requirements for minutes, schedules, transmittals, correspondence and all other documents.

- Update software as required, in consultation with the Authority.

9. Applicable Codes and Standards

The following is a summary of criteria to be used in the design of the transportation facilities. Criteria shall include the latest edition of all applicable codes and requirements and shall include but not be limited to those indicated below. Within the World Trade Center site, all work shall be designed in accordance with latest standards and requirements of the Authority. Other applicable design criteria and guidelines will be provided or developed by the Authority in conjunction with the Consultant's work. The Consultant will also be required to perform a search through Port authority Engineering Files, PATH files and all other sources, to gather all available existing information necessary to perform the design.

a. General Code Requirements and Standards

All buildings systems and elements will be designed to be in compliance with applicable Federal, New York State, New York City, and International Codes in accordance to law.

b. The following are the major applicable codes and standards:

• Building Code of the City Of New York (“City Code”), including Reference Standards, Local Laws and International Building Code that New York City is likely to adopt in near future.

• Compliance with City Codes pertaining to, but not limited to, the New York City Fire Safety Codes, Electric, Plumbing, energy and water conservation, environmental safety, building structural, wind and seismic codes.

• Latest edition of the following Federal Regulations

- Americans with Disabilities Act

- Clean Water & Clean Air Act

- US energy, water conservation and Green Building Regulations

- US Occupational Safety & Health Administration regulations.

• National Fire Protection Association (NFPA) Guidelines & Recommendations.

• American Society of Heating, Refrigeration & Air Conditioning Engineers ventilation and energy performance standards.

•Port Authority Tenant Construction Review Manual

• Port Authority World Trade Center Site Sustainability Guidelines (TBD)

• New York State Executive Order 111

• US Environmental Protection Agency (EPA) regulations

• NYC Department of Environmental Protection (DEP) regulations

• In addition to those indicated above, the Consultant’s design should also conform to the following criteria and the latest versions of the codes and standards identified (but not limited to) those below, listed by discipline.

b. Sustainable Design

• Port Authority World Trade Center Site Sustainability Guidelines (TBD)

• New York State Executive Order 111

• New York City Transit Sustainable Guidelines

• US DOE/EPA Energy Star Program

• US Clean Air & Clean Water Acts for any discharges

• American Society of Heating, Ventilation and Air Conditioning Engineers, Standard 62 for ventilation and Standard 90.1 for energy efficiency.

• National Institute for Occupational Safety & Health (NIOSH) Guidelines.

• US Green Building Council (USGBC), Leadership in Energy & Environmental Design Guidelines (LEED 2.1) for existing buildings.

• Sustainable Buildings Industry Council (SIBC) Guidelines.

• US Federal & Canadian Guidelines for procurement of Green Materials and for Renewable Energy Resources.

c. Structural

• American Institute of Steel Construction (AISC) Steel Construction Manual - Allowable Stress Design

• America Concrete Institute (ACI) Building Code Requirements for Reinforced Concrete

• American Railway Engineering and Maintenance-of-Way Association (AREMA)

• Port Authority Plaster Ceiling Design Standard and Lightweight Ceiling Design Criteria

d. Civil

• Sanitary and Combined sewers shall be designed in accordance with latest standards and requirements of NYCDEP.

• Water mains, lateral lines, fire hydrants and associated appurtenances shall be designed in accordance with latest standards and requirements of NYCDEP-Bureau of Water & NYC Building Department.

• New and proposed private utilities shall be designed in accordance to Port Authority standards and requirements or that of applicable Utility Company’s/Owner’s standards and requirements. Private Utility Companies that are expected to be affected include, but are not limited to, Consolidated Edison, Verizon, and Keyspan.

• New York City Transit track work standards

• American with Disabilities Act (ADA) Standard for Accessibility Design.

• Port Authority’s Codes, Standard Details and Specifications.

• Port Authority’s Engineering Department Engineering/Architecture Division Civil Engineering Design Guidelines (CEDG).

e. Traffic

• Analyses of facility’s pedestrian capacity shall based on the Transportation Research Board’s Highway Capacity Manual

• National Electrical Manufacturers Association (NEMA)

• Americans with Disabilities Act (ADA) Standard for Accessibility Design

• Port Authority Codes, Standard Details and Specifications.

• Port Authority’s Engineering Department Engineering/Architecture Design Division Traffic Engineering Traffic Standard Details

f. Geotechnical

• New York City Building Code

• Authority Technical Specifications

• American Institute of Steel Construction (AISC) Steel Construction Manual – Allowable Stress Design

• America Concrete Institute (ACI) Building Code Requirements for Reinforced Concrete

g. Mechanical/Plumbing/Fire Protection/Electrical/Electronics

• ASME American Society of Mechanical Engineers

• ANSI American National Standards Institute

• ASTM American Society of Testing and Materials

• SMACNA Sheet Metal and Condition Contractors National Association

• AMCA Air Movement and Control Association

• ARI Air Conditioning and Refrigeration Institute

• API American Petroleum Institute

• HI Hydraulic Institute

• UL Underwriters Laboratories

• AWWA American Water Works Association

• FM Factory Mutual

• AGA American Gas Association

• ABMA American Boiler Manufactures Association

• APTA American Public Transportation Association

• New York State Energy Code

• NFPA National Fire Protection Association

• NEMA National Electrical Manufacturer’s Association

• IES Illuminating Engineering Society

• CBM Certified Ballast Manufacturer’s Association

• ETL Electrical Testing Laboratories

• IEEE Institute of Electrical and Electronic Engineers

VI. INFORMATION AND MATERIALS PROVIDED BY THE AUTHORITY

The documents specified below were prepared for the subject work and form a part of this Agreement.

All documents, will be made available to the recipients of the Request for Proposals and the Consultant from the Project Manager listed herein at the Port Authority offices at ***, New York, New York 10048 during regular business hours.

Said documents are as follows:

Permanent World Trade Center PATH Terminal:
- Section Looking North

- Upper Concourse Level Plan

- Lower Concourse Level Plan

- Church Street Level Plan

- PATH Platform Level

- PATH Mezzanine Level

VI. CONDITIONS AND PRECAUTIONS

A. General

The Consultant shall immediately inform the Authority of any unsafe condition discovered at any time during the course of this work.

Vehicular traffic at the World Trade Center Site shall always have priority over any of the Consultant's operations

B. Work Areas

The Consultant shall limit his inspection work to the areas necessary for the performance of such inspection and shall not interfere with the operation of the facility without first obtaining specific approval from the Chief Engineer.

During all periods of time when he is not performing operations at the work site, the Consultant shall store all equipment being used for the inspection in areas designated by the Chief Engineer and shall provide all security required for such equipment.

The Consultant shall not permit any objects or pieces of equipment to lie unattended on sidewalks, roadways or structures at any time.

C. Work Hours

The Consultant shall perform his work at the site between the hours of 8:00 A.M. and 4:00 P.M., Monday through Friday, unless otherwise directed by the Chief Engineer. In any case, no work shall be performed at the site on a legal holiday of either the State of New York or the State of New Jersey, unless otherwise directed by the Chief Engineer.


ATTACHMENT B

PERFORMANCE OF EXPERT PROFESSIONAL ARCHITECTURAL AND ENGINEERING SERVICES FOR THE PERMANENT WORLD TRADE CENTER PATH TERMINAL ON A TASK ORDER BASIS

AGREEMENT ON TERMS OF DISCUSSION

The Port Authority's receipt or discussion of any information (including information contained in any proposal, ideas, models, drawings, or other material communicated or exhibited by us or on our behalf) is not to impose any obligation whatsoever on the Port Authority or to entitle us to any compensation therefor (except to the extent specifically provided in such written agreement, if any, as may be entered into between the Port Authority and us). Any such information given to the Port Authority before, with, or after this letter, either orally or in writing, is not given in confidence and may be used or disclosed to others, for any purpose at any time without obligation or compensation and without liability of any kind whatsoever. Any statement which is inconsistent with this agreement, whether made as part of or in connection with any information received from us, or made at any other time in any fashion, shall be void and of no effect. This letter is not intended, however, to grant to the Port Authority rights to use any matter, which is the subject of valid existing or potential letters patent. The foregoing applies to any information, whether or not given at the invitation of the Port Authority.

                                                                            __________________________

                                                                            NAME OF COMPANY

                                                                            __________________________

                                                                            SIGNATURE OF OFFICER

                                                                            __________________________

                                                                            TITLE

                                                                            __________________________

                                                                            DATE




From: "Bird-Furgeson, Sandra" <sbird@panynj.gov>
To: "Bird-Furgeson, Sandra" <sbird@panynj.gov>
Cc: "Grassi, Tom" <tgrassi@panynj.gov>
Subject: ADDENDUM - REQUEST FOR QUALIFICATIONS/REQUEST FOR PROPOSALS - PERFORMANCE OF EXPERT PROFESSIONAL ARCHITECTURAL AND ENGINEERING SERVICES FOR THE PERMANENT WORLD TRADE CENTER PATH TERMINAL ON A TASK ORDER BASIS
Date: Thu, 3 Jul 2003 13:54:52 -0400

July 3, 2003

SUBJECT: REQUEST FOR QUALIFICATIONS/REQUEST FOR PROPOSALS - PERFORMANCE OF EXPERT PROFESSIONAL ARCHITECTURAL AND ENGINEERING SERVICES FOR THE PERMANENT WORLD TRADE CENTER PATH TERMINAL ON A TASK ORDER BASIS - ADDENDUM

Dear Sir or Madam:

The Port Authority of New York & New Jersey hereby offers to amend the subject Request for Qualifications/Request for Proposal letter, dated July 1, 2003, as follows:

On page 3, under section II.  Requirements and Information To Be Submitted, delete subparagraph B2. in its entirety and replace with the following:

"2. The same consulting firm shall perform all MEP tasks (with exception of electronics design).  The Consultant's engineer who would provide the electrical and mechanical design services must have a minimum of ten (10) years of experience and must have completed at least three (3) projects of comparable size, type and complexity in each discipline.  They shall also have demonstrated experience in all life safety matters including familiarity with NFPA 130."

The due date for proposal submission remains July 22, 2002.

If you have any questions, please contact Ms. Sandra Bird-Furgeson at sbird@panynj.gov.

Sincerely yours,

Tim Volonakis
Manager
Professional, Technical & Advisory Services Division
Procurement Department




From: "Bird-Furgeson, Sandra" <sbird@panynj.gov>
To: "Bird-Furgeson, Sandra" <sbird@panynj.gov>
Subject: REQUEST FOR QUALIFICATIONS/REQUEST FOR PROPOSALS - PERFORMANCE OF EXPERT PROFESSIONAL ARCHITECTURAL AND ENGINEERING SERVICES FOR THE PERMANENT WORLD TRADE CENTER PATH TERMINAL ON A TASK ORDER BASIS - 2nd ADDENDUM
Date: Wed, 16 Jul 2003 10:23:16 -0400

July 16, 2003

SUBJECT: REQUEST FOR QUALIFICATIONS/REQUEST FOR PROPOSALS - PERFORMANCE OF EXPERT PROFESSIONAL ARCHITECTURAL AND ENGINEERING SERVICES FOR THE PERMANENT WORLD TRADE CENTER PATH TERMINAL ON A TASK ORDER BASIS - 2nd ADDENDUM

Dear Sir or Madam:

The Port Authority of New York & New Jersey hereby offers to amend the subject Request for Qualifications/Request for Proposal letter, dated July 1, 2003, and amended on July 3, 2003, as follows:

On page 23 of the Attachment A, under TASK D. preliminary ENGINEERING DOCUMENTS, item number 11k(6)., delete the third bullet starting with "Security Options:..." in its entirety.

On page 41 of the Attachment A, under Section VI.  INFORMATION AND MATERIALS PROVIDED BY THE AUTHORITY, in the first sentence of the paragraph at the top of the page, delete "recipients of the Request for Proposals and the".

The four (4) pages included herewith are questions received from RFQ/RFP recipients and corresponding answers, as provided by the Authority.

The due date for proposal submission remains July 22, 2003.

If you have any questions, please contact Ms. Sandra Bird-Furgeson at sbird@panynj.gov.

Sincerely yours,

Tim Volonakis
Manager
Professional, Technical & Advisory Services Division
Procurement Department

<<Question & Answers.doc>>

REQUEST FOR QUALIFICATIONS/REQUEST OR PROPOSALS –PERFORMANCE OF EXPERT PROFESSIONAL ARCHITECTURALAND ENGINEERING SERVICES FOR THE PERMANENTWORLD TRADE CENTER PATH TERMINALON A TASK ORDER BASIS - 2nd ADDENDUM

 

QUESTIONS AND ANSWERS

Question 1.

The RFP states that a single entity must perform all MEP work.  Since we propose a fully integrated team co-located in a dedicated project office, we wish to make available to this project the best talent from our member firms. Will we satisfy the requirements of the RFP if a single entity is designated to manage and be responsible for all MEP work?

Answer: NO

Question 2.

Some people have read and interpreted paragraph 2 to say that the same firm providing structural must provide all MEP also. Is this true, or does paragraph 2 simply mean that one firm must provide all MEP services, not necessarily the same firm as the structural firm?  Para 2 now does not refer to vertical transportation systems. Does this mean that those services can be provided by a different firm independent of the other MEP services?

Answer: Per the addendum, dated July 3, 2003, no mechanical systems are specifically called out.  The vertical transportation is a component of the mechanical design to be performed by the MEP firm. One firm must provide all MEP services, not necessarily the same firm as the structural firm.

Question 3.

An unusually broad range of skills must be brought to bear on this important project.  Is it the intention of the PANYNJ to allow the four presenters specified in the RFP to be supported by additional technical talent during the Questions and Answers segment of the presentation?

Answer: NO

Question 4.

In anticipation of a possible presentation and due to the fact that the notification will only come within 48 hours, could you please provide us with the possible size of the room, and whether in addition to the 4 individuals that are presenting we can provide an IT person?

Answer: Use of one (1) IT person to run projector is acceptable.

Question 5.

In addition will we be able to be offered enough time (say 15 to 30 minutes) to set up the room with some Technicians, then say about 15 minutes to break down the room after the presentation?

Answer: 5-10 minutes for set up and 5-10 minutes for break down.  Assume room will be a standard conference room size. 

Question 6.

With respect to submission instructions does the 100 page limit include the following:

Answer: All of items bulleted above, including all resumes, will not be counted toward the 100 page proposal limit.  

Question 7.

Are 11”x17” pages allowed? If so, do they count as one or two pages?

Answer: 11” x 17” pages are allowed, but will be counted as two pages each. 

Question 8.

Can a font size less than 12 points be used in tables, matrices, Org Charts, or photo captions?

Answer: YES, but should be limited to no smaller than 8 font. 

Question 9.

Would you prefer that we organize the proposal using the five items lettered A through E (II. Requirements and Information to be Submitted, pages 2 through 5 of the RFP), or the four numbered criteria (G. Rating Criteria, page 6 of the RFP)?

Answer: Organize five items lettered A-E.

Question 10.

As delineated in the organizational structure sheet, it is our interpretation that the consultant will not support the PANYNJ in any of the areas west of Greenwich St. is this correct? This is asked specifically for work hour purposes.

Answer: NO.  Please see Attachment A, under “Miscellaneous”, starting on page 32. 

Question 11.

The RFP platform level drawing is showing 4 platforms to serve 5 tracks. This 5 tracks layout are different from the temporary platform layout (3 platforms to serve 5 tracks). The additional platform will only be able to serve the sixth track on one side but not on both sides. There is some conflict between the Attachment A and the RFP drawings. Please clarify if we should follow the drawings or Attachment A.

Answer: The Port Authority’s position is that there is no conflict between the Attachment A and the drawings. 

The RFP Platform Level drawing shows a possible configuration for the Permanent Terminal whereby the existing track 1 would be removed, and Platform ‘A’ (the easternmost platform) widened.  The platform shown to the west would be the new, fourth platform, designed and constructed as part of the Permanent PATH Terminal project.  The other three (existing) platforms (including the widened platform ‘A’) would be restored to accommodate 10-car trains.  Under this scheme, passengers would be able to enter and leave certain PATH trains from both sides onto all four (4) platforms. 

Question 12.

Please clarify the reference to the “host government” on page 23 of Attachment A.

Answer: This paragraph has been deleted.  Please see the attached addendum.

Question 13.

Which, if any, of the systems described under Section 2, Items b, c, d, e and f, starting on Page 18, are included as part of this project and which are provided as part of another project scope of work with points of connection only provided under this contract?

Answer: All of these items are included in the project and are within the Consultant’s scope of work.

Question 14.

The third bullet under the heading “Security” on page 31 of Attachment A refers to a Secondary Security Control Center.  Is this Center to be located within the Permanent World Trade Center PATH Terminal?  What functions are envisioned for this Center, what is the anticipated staffing level, and how large is the Center envisioned to be?  Is the Consultant responsible for systems integration of equipment within this Center with a Primary Center or the Hoban Control Center?

Answer: There will be a Secondary Security Control Center.  It may be located on or off site.  The size, functions and system integration will be determined by the Consultant. 

Question 15.

Drawings attached to the RFP indicate that the majority of the West Passageway will be designed by the Port Authority.  Who will design the utilities and systems that run through this space into the mezzanine, concourse, or other passageways?  In order to ensure a consistent architectural theme throughout the facility, who will lead the interior architectural efforts, the Consultant or the Port Authority?

Answer: Please see page 2 of Attachment A, “World Trade Center Master Plan” for architectural design roles. 

Under the direction of the Engineering Program Manager the mechanical design will be a coordinated effort between Port Authority Engineering staff and the A/E consultant.  The Port Authority Engineering staff will be responsible for the design of all mechanical systems generally west of the eastern slurry wall and the A/E consultant will be responsible for the design of all mechanical systems generally east of the eastern slurry wall. 

Question 16.

Can you please more clearly define specific MEP tasks and responsibilities of the Port Authority (PA) Engineering staff?  For example, the PA engineering staff are designated to perform “Preliminary Engineering and Final Design for PATH facilities (platforms, mezzanine, tracks)”.  Does their scope include all supporting services such as normal and emergency exhaust systems, track exhaust system, normal and emergency power, HVAC systems, sprinkler systems and all of the associated distribution, etc.?

Answer: Yes.

Question 17.

The RFP references the WTC Master Plan for utility infrastructure.  Are all of the infrastructure systems being designed outside of the scope of this project with all services being delivered to the Terminal Building in capacities sufficient to accommodate the Terminal Building (e.g., chilled water, normal and emergency power, etc.) or is the Terminal Building intended to be “stand-alone”?

Answer: The PATH Terminal complex is to be a ‘stand-alone’ facility.

Question 18.

Is the Site Utility work as described in Paragraph 2 of Page 12 part of the scope of work for this project?

Answer: Yes